复古风小户型三居室案例
发布时间:2021-02-04 22:01
案例详情 这是一套建筑面积89平米的复古风小户型三居室案例,设计师以深色调为主,通过这些复古范的软装和家具,来营造出一种典雅、有格调的居住氛围,就算是小户型,只要搭配得好,也是可以用深色调的!典型的古典欧式风格,以华丽的装饰、浓烈的色彩、精美的造型达到雍容华贵的装饰效果。欧式客厅顶部喜用大型灯池,并用华丽的枝形吊灯营造气氛。门窗上半部多做成圆弧形,并用带有花纹的石膏线勾边。室内有真正的壁炉或假的壁炉造型。墙面用高档壁纸,或优质乳胶漆,以烘托豪华效果。
客厅边上还有一个小飘窗,可以代替部分沙发的作用。再加上电视柜和旁边的置物架,这样客厅就不担心没有足够的储物空间了
餐厅处的设计并不复杂,大理石的餐桌搭配带有铜质金属的椅子和桌脚,侧方摆放深木色的餐边柜,在黄铜灯具的映照之下,显得很有格调
厨房这个空间还是比较宽敞的,再加上设计师在餐厨之间的墙面做了室内窗,看起来就更宽敞了。深蓝色的橱柜搭配木纹砖,颜值非常高。
主卧室的衣柜被放在了床尾的位置,同样是浅墨绿色的背景墙,搭配这些素雅的软装,可以避免小户型看起来太过暗沉
沙发背景墙上的浅墨绿色,是由玄关处一直延伸到客厅的设计,这样的配色让整个小户型看起来都有着一种复古的感觉
儿童房的床头背景墙是被刷成了灰蓝色,设计师把床靠着窗户摆放,这样就算儿童房面积比较小,也能显得更为拥挤一些。
卫生间的设计偏向于暗色系,黑色的浴室柜加上黑色的六边砖,前面选择白色的瓷砖也是为了避免卫生间太暗,紧凑的布局保证了卫生间的干湿分离效果
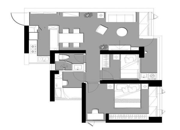
【户型图】 此户型整体不是很规整,但空间划分清晰合理,格局搭配得当,空间利用合理,居住方便。
网址:复古风小户型三居室案例 https://www.jiaju82.com/news-view-id-741883.html

