#旧房翻新# 明净通透、简洁实用 打造极致简
发布时间:2021-02-19 01:01
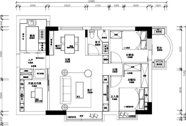
案例详情 97㎡简约三室开放书房与客卧随意切换。业主需求:家里有老人。装修预算是11万左右。室内面积为97平方米。要求现代舒适,要使用简洁,设计比较新颖有创意,空间利用合理,想有一些储纳空间,餐厅想多利用空间,次卧室需要留出宽敞的空间,还要有足够的收纳空间
客厅望向餐厅视角,顶部嵌入灯带制造出悬浮效果
定制整面收纳型电视背景墙,提高客厅储物能力,白+木的设计增添层次感
靠墙设置大面积定制柜,满足餐边收纳,中部留空,花砖铺贴背景并预留插座,打造西厨区域,体现业主对生活情调的小追求
以白色为基调,木色家具作为点缀,整个空间温馨而舒适
靠窗设计卡座式沙发,可作休憩一角,底部可用于储物
主卧,延续白+木基调,用吊灯、窗帘、地毯为空间添彩,打造出清新自然的舒眠环境
厨房,将2.5米L型格局变成5米U型格局,大大增加操作台面及收纳空间,地面铺贴木纹砖呼应橱柜,使视觉更加整体
入户落尘区铺贴拼色六角砖,设置黑框玻璃移门与厨房隔断,同时保障玄关采光和通透性
卫生间,墙地面通铺灰色石纹砖,成品浴室柜与半开放式镜柜解放台面空间,干净整洁
平面布置图(把原本书房与餐厅位置互换,既扩大餐厅区域,也把客餐厅形成相互对流的状态,增加通风采光度
网址:#旧房翻新# 明净通透、简洁实用 打造极致简 https://www.jiaju82.com/news-view-id-742509.html

