8㎡卫生间安装德立淋浴房轻定制F9,舒缓压力
有人说,中产阶级可能是世界上最焦虑的群体,他们或许有不菲的收入和体面的工作,但内心总是非常不安,需要兼顾的东西太多,真正留给自己的时间少之又少。
中产者往往会不自觉地在卫生间多待几分钟,因为卫生间就是一道分界线,划定了一块不被打扰的“私密空间”,可以暂时隔绝外界的一切,使他们短暂地做回自己。
卫生间的舒适程度、美观与否也会影响一整天的心情,程先生就是一名典型的中产阶级,他对于卫生间装修十分焦虑,要让父母和孩子用得安心,更要帮自己舒缓压力,为了使质量和服务更有保障,他最终选择了德立淋浴房。
设计档案
客户:程先生
卫生间面积:约8㎡
要求:保证安全,避免压抑

设计思路
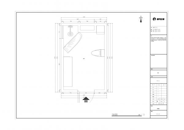
1/卫生间户型分析。
该卫生间的空间大小中等,形状呈一个竖向的矩形,卫生间门居中,门正对面是根柱子,窗户开在左侧靠背墙位置,应程先生的要求,洗澡的空间要尽量大一些,浴室柜、梳妆镜、马桶的位置也要合理搭配,不能使整个空间看上去太压抑。
2/如何实现舒缓压力?
淋浴房的形状选择上,设计师采用钻石型,根据户型特点,右侧墙面大面积留白,延展空间视线区域,钻石型淋浴房的开门方向,正好可以引导使用者看向留白区域,起到舒缓压力、精神放松的效果。
3/淋浴房的款式选择。
为了打造一个令人放松的独立空间,淋浴房的款式是重中之重,设计师正好利用柱子隔开的左侧空间大做文章,巧妙扩大淋浴空间,并且在淋浴房的选择上,特别选用了可以定制的平开门不锈钢淋浴房「德立轻定制F9」。

效果呈现
德立轻定制F9本身具有极致简约的特点,再配以设计师的规划设计,淋浴空间整体呈现出十分简约得体的观感,也使整个卫生间气质不凡,不仅采光效果奇佳,角落的盆栽更是增添了一丝情操,给淋浴时光带来了惊喜和乐趣。



更让人惊喜的是,F9拥有纤长的落地拉手,自上而下呈现出极简之美,握感舒适,并且方便了程先生和家人,老人小孩使用无忧。
由于预留的位置比较特殊,在设计安装的过程中,难免需要多次调整,而F9的可调节墙夹设计正好解决了这一难题,它的墙夹可以前后左右双向调节,轻松解决安装问题。


在干湿分离方面,F9同样游刃有余,304不锈钢的挡水底材不仅稳定性强、经久耐用,更能防止水流外渗,并且,玻璃与玻璃之间的防水磁条可以紧锁门缝,严密防水。
客户评价
程先生
淋浴房的安装深得我意,不仅给予了我一个相对独立的空间,更让身和心同时得到放松,卫生间的设计简约大气,洗澡时放眼望去看到的不是焦虑,而是希望,我的家人也特别喜欢。
设计师
设计是一门人生的哲学,在对整体布局、型号选择、位置摆放的思考之外,我更加注重客户的内心体验,因此,每一个细节改动所起到的效果都是难以想象的,安装淋浴房的意义除了解决洗浴的需求,更在精神层面上得到寄托。
网址:8㎡卫生间安装德立淋浴房轻定制F9,舒缓压力 https://www.jiaju82.com/news-view-id-745065.html

