简约二居室
发布时间:2021-03-15 16:00
案例详情 今天分享的是一套建筑面积89㎡现代简约风小户型二居室,设计师把餐厅和厨房结合起来,让家里多出了一个衣帽间,还用独特的黑框玻璃推拉门作为电视背景墙和主卧室的门,可以说是非常有创意了 设计的思维从来不应受造价的限制,看似简单的工艺与材质,同样可以具备设计的美感和深度,蕴含进退有度的张力,崇尚自然简单的内核,在不经意间触动灵魂,随性与自然的串联与衔接,如清风拂面,舒适清爽,给人天然之韵;其实,整个设计以功能为前提,利用自然的方式,解决实用和美学的关系,给人无尚的轻松和自在

客厅的沙发背景墙做了黑板墙的设计,在黑板墙上画出屋主喜欢的图案,简单的布艺沙发加入了金属质感的脚,让客厅看起来更加时尚

卧室的磨砂玻璃门是可以完全打开藏在墙后面的,所以平时没有做饭的时候,把整个空间给变成开放式的布局,这样看起来就非常大气了

次卧的墙面被刷成了浅灰色,搭配复古的木质床头柜和黑、蓝相间的床,显得更有格调感。次卧床尾的墙上挂着电视,也方便屋主平时使用

餐厅和厨房被结合在了一起,一个吧台式的餐桌满足了屋主一家三口的使用需求,开放式的厨房设计让小厨房看起来也宽敞、明亮一些

卧室的床头背景墙做了木饰板的造型,边上还留出部分镶嵌镜子。在床头柜的边上做上一个书房,方便屋主平时在家处理一些工作上的事情

衣帽间的面积其实并不算很大,左右两侧做了到顶的柜子,然后把部分柜子做出开放式的设计,这样使用起来会方便一些,黑色与白色搭配灰木色的设计,看起来更加舒适

入户的玄关门厅边上就是独立的衣帽间,所以门厅没有做太多的收纳,在墙面摆放一张挂画,地面放一个创意的雕塑,整体灰色调的空间看起来非常简洁轻松

卫生间的洗手台被放在了门外,而门内就是马桶和淋浴房紧凑的摆放在一起

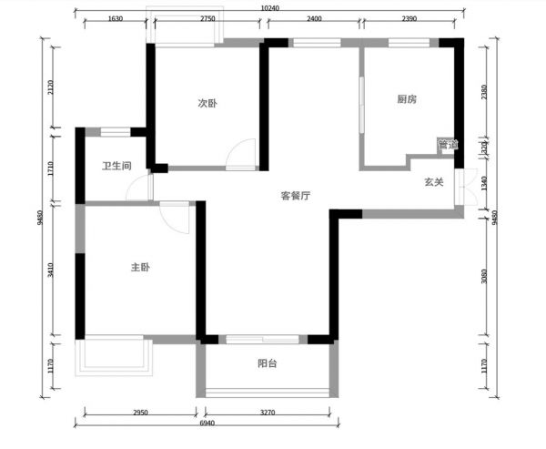
【户型图】 对于小户型只有一个卫生间的户型来说,这样干湿分离的设计,每天早上就不用争抢卫生间了
网址:简约二居室 https://www.jiaju82.com/news-view-id-745432.html