建外SOHO西区 奢华

餐厅是精致生活的典范,铜与水晶玻璃的结合,看上去像是凛冬里树枝上垂下来的冰凌,暖黄色的光源在透明“冰块”的包裹下,增添了几分朦胧美。餐桌是不对称的椭圆形,烘托出自由轻松的生活氛围。

羊羹色为厨房的主色,这种颜色起源于日本冬季糕点水羊羹,倒是刺激了食欲。厨房墙面用岩板直接延伸至墙面,让整个空间更具有整体性、统一性。没有了客厅,开放式空间的生活显得更加随意,核心区域也可以是任意区域了

意大利的白石享誉全世界,白色石材纯洁、柔和的质感再配上淡雅自然的脉络,被人们付予了神圣和纯洁的含意,是设计师与业主的最爱。黑色面盆给人一种十分独特的醒目亮点, 而卡拉拉白大理石的灰色纹理是黑白的过渡色。肩负着和偕自然角色,把黑与白反差缓冲了。

无边框的门套线设计,让过道区域虽然集中了几扇门,但还是显得简单明了,也继续延续了整套方案的设计主题。卧室墙面颜色暗一点,会让整个空间光线变暗,地面相互衬托,以床上用品织物为中心色,给人一种宁静感,可以缓解精神上的紧张感。

落地窗前的单人椅角落,是休闲时的核心区域。白色的展柜,和对面羊羹色的厨柜形成了鲜明的色彩对比,深色开放格的点缀,又让两个空间有了一些联系与交流,灰色的仿木纹地砖,不仅可以让整个空间很快安静,还能够很好的去呼应着两个空间颜色

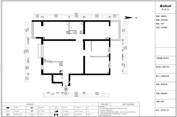
原始户型为标准三居室,但早期的建筑理念决定了房屋只能满足其正常的使用,原有的厨房在客厅一角,而客餐厅的面积也不符合现代人的生活方式,并不能让业主去更好的享受生活

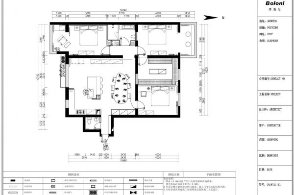
方案更改后的客厅、餐厅、厨房开敞开放,互联互通,每个空间都不呆板,在厨房烹饪时有人在吧台陪伴,在客厅喝茶时有人在西厨烘培,在餐厅待客和品茶,在吧台办公和早餐,吧台就是整套屋子的核心区域。没有客厅没有电视没有沙发,现代人的生活方式应该以实际需求出发
网址:建外SOHO西区 奢华 https://www.jiaju82.com/news-view-id-745868.html