万国城 现代简约
发布时间:2021-03-17 13:02
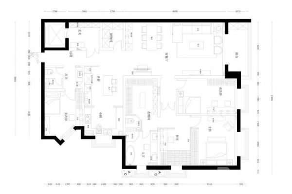
案例详情 整体运用极简的设计手法,开放的布局,造型干净利落的顶面与墙面,体现出现代简约生活的品质感。整个空间在为暖灰色的主基调。

客厅以浓厚的现代主义特色, 以返璞归真的品质理念,来突出简洁、实用。

厨房门板耐磨板材质具有表面耐磨、耐腐、耐高温、耐刮、抗渗透、易清洁的特性。

设计师恰到好处的色彩搭配,大胆前卫的细节设计,一切均统一在迷人的纯白色的浪漫之下。

次卧室,充分利用采光将墙壁刷米黄色,搭配上略带些木色的柜子和书桌, 个性中充满朝气。

主卧室里面浅色与暖色系的搭配,让主人身处这个空间会感觉到很温馨,主卧阳台的小榻榻米,是一个看书好地方, 下班之后为主人家也增添了一处安静思考的空间。

主卧室里面浅色与暖色系的搭配,让主人身处这个空间会感觉到很温馨,主卧阳台的小榻榻米,是一个看书好地方, 下班之后为主人家也增添了一处安静思考的空间,次卧室,充分利用采光将墙壁刷米黄色,搭配上略带些木色的柜子和书桌, 个性中充满朝气,较为特色的是,书桌为镶嵌式与衣柜水平融为一体,注重流畅的线条设计,客厅以浓厚的现代主义特色, 以返璞归真的品质理念,来突出简洁、实用。
网址:万国城 现代简约 https://www.jiaju82.com/news-view-id-745924.html