鸿坤罗纳河谷 现代简约
发布时间:2021-03-17 15:01
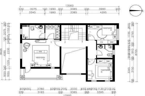
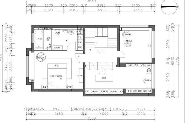
案例详情 本案为500㎡的别墅设计,设计师在认真查阅资料后在设计上面充分体现田园别墅的舒适空间,在功能划分上实现了家庭公共区域、主人生活区以及私趣爱好区的布局,同时为了保证产品的舒适性所有户型都配备电梯,方便业主的使用。

隐藏的窗帘盒和顶上面的筒灯遥相呼应都是整个空间的点缀,深蓝色沙发好像独立于整个空间之外,但它又是整个空间的亮点,好像沙漠里的一片绿洲一般。

开放式的厨房可以让女主人一边做饭一边可以看到外面孩子们的情况,也可以增加家人之间的互动。

楼梯间的雕塑直指穹顶中心,楼梯下面的空间做储物收纳之用,极大的利用了空间,地台可以成为孩子们专属的娱乐区域,把每一个区域都利用到了极致。

应业主的要求做了一个手办的收纳柜,让手办有了自己的家,方便业主平时打理。

卧室地面铺木地板,床头背景使用线条布满让我是看上去更加拥挤一点,床都是离开地面的方便扫地机器人的清理,设计更加人性化。

卫生间做干湿分离比较好打扫,淋浴房里面做储物隔断,马桶、小便池、洗手台好像贴在墙面上。

衣帽间的柜体颜色是粉色的,地面用鱼骨刺的普法铺贴,比以往的衣帽间更加美观。

以宁缺勿滥为精髓,合理的简化居室,从简单舒适中体现生活的精致,出门就能看一片鲜活的植物,让人心情能够轻松许多。

少即是多,多即是少。如果发现自己的家被浓烈的世俗气息淹没了本属于你的独特气质和精致品位,那你可能是拥有的东西太多——书和杂志,家居办公用品和电脑设备,怎样才能将自己从繁杂中解救出来,怎样才能走出无端堆砌的束缚。

专属主人的居室,到处都能体现出主人对生活的热爱,一个高品质的生活往往在生活的细节之处体现。
网址:鸿坤罗纳河谷 现代简约 https://www.jiaju82.com/news-view-id-745962.html