西山华府 现代简约
发布时间:2021-03-17 15:01
案例详情 这是一套一层带地下一层的复式结构。业主是三口之家从事IT行业高管。一层主要主人生活空间 独立客厅 中厨和西厨独立分开,主卧室西边露台封闭成步入式衣帽间。地下一层主要是休闲 运动 娱乐空间

客厅采用现代中式的风格,地面采用仿大理石地砖造型拼花,电视背景采用护墙板和岩板结合

地下室采用无主灯设计的手法,墙面展示了主人各种运动器材,和影音室相结合,整个地下现代简约时尚结合在一起

厨房采用博洛尼巴西橱柜 玻璃的柜门岩板台面,防水石膏板吊顶,是整个厨房功能齐全,整齐大方合理利用空间

餐厅和西厨相结合 西厨采用导台和酒吧的结合 体现主人的休闲生活情调,吊顶采用铜条和石膏板结合的手法体现新中式的元素

卫生间采用拼花地面 采用三分离设计,巴西款型双盆卫浴柜。质量马桶和独立浴缸和淋浴房 整个空间现代开阔舒适

书房采用现代烤漆榻榻米和博洛尼横向开放金属格书架配合横向移门的手法,整个书房既简洁又大方,又不是它的多功能性

我是采用的是灰色调为主色,采用三层实木复合拼花地板,使整个显得更加现代温馨,又具有时尚感,铜色的顶面收边配合温馨的主灯

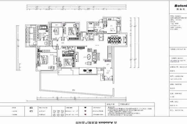
一层平面布置图,独立客厅,中西厨分离设计手法,保持三个给卧室一个独立书房,主卧室和儿童房都是独立卫生间在房间里

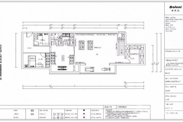
地下一层平面图 采用无主灯设计的手法,墙面展示了主人各种运动器材,和影音室相结合,整个地下现代简约时尚结合在一起
网址:西山华府 现代简约 https://www.jiaju82.com/news-view-id-745964.html