君山墅 中式
发布时间:2021-03-17 17:01
案例详情 本方案是新中式风格,其风格是现代与中国古典元素结合,去繁化简,毫不违和,仿佛天生就该同俱一体。结合业主的喜欢安静的性格,为其量身打造了很多能够思考独处的空间,让人感受繁华都市内难觅的安宁和历久弥新的气韵。

玄关轻描淡写,大气明亮。给人一种辽阔的视觉感受。玄关的挂画、与盘旋的灯相呼应,简洁又不不失大雅。静动处之。

客厅布局开阔,打散空间秩序的串联,来完成视觉维度的延伸,空间井然有序。喧嚣浮华有穷时,静谧安然无尽处。素雅的空间打造出一个飘渺灵动又充满韵味的空间。瞬间让人忘却世俗的繁华与喧嚣。

蓝调的窗帘和白净的沙发搭配是优雅风情的最佳色彩,让空间的干净与温暖气息在深与浅的碰撞中造就一个诗意的存在。

餐厅空间秉承优雅浅淡的基调,摒弃了繁冗的色调与修饰,以删繁去简的手法捋自然引入空间。人文情怀浓郁的水墨色使整体空间流泻出沉静淡然的气息。

空间是空间生命的容器,他给予人心灵慰藉。“家”是温暖的港湾,因此光源关系中的氛围是暖心的调子,让人享受温暖舒适的空间。

新中式茶室不事奢华,精在体宜,实现了传统文化与现代元素的完美碰撞,微微洒下的灯光 绢绢刺绣与清澈人文针丝交织,一束光、一道影、一幅画,回归本真、自然和谐的生活境界。

书房空间中,简单的木色呈现出质感美。以人性化的设计思维出发,使室内的格调和秩序互为烘托、各自延伸,体味统一性的美

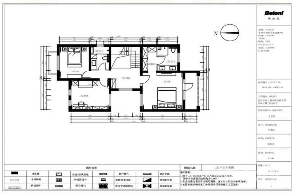
二层每个房间都有自己的独立私密空间。南北通透。业主是一对退休了的夫妻。所以整体功能设计上比较方正,规矩传统又不失现代气息。

地下室主要以休闲功能为主。考虑到老人退休后茶余的乐趣。可以在家种种花、 练练字、看看书、品品茶等情操。地下室主要以书房、庭院为主。

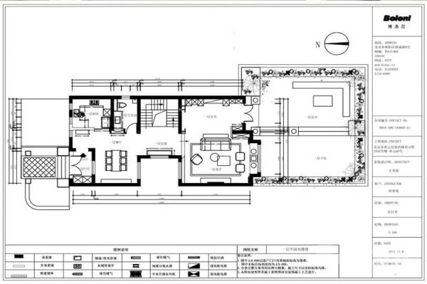
定位为实用户型。一层根据业主生活习性和爱好合理布局划分空间。空间布局灵动,功能分明,流线清晰。客厅采光好。
网址:君山墅 中式 https://www.jiaju82.com/news-view-id-745994.html