华亭嘉园 现代简约
发布时间:2021-03-17 18:01
案例详情 此风格为现代简约风格,客厅墙面运用了白色大理石和木质墙板的材质,家具客户选用的都是意大利进口家具,造型简单,通过地面大规格瓷砖得衬托,使得整个空间更大,有延伸感,衣帽间都是做的铝框衣帽间,加上灰色玻璃,使空间更加高端大气上档次。

此空间为中厨空间,采光较暗,整体以浅色为准,局部有玻璃门,让空间显得明亮,宽敞,通透性更强。

此空间为衣帽间空间,是一个独立的空间,整体颜色为深色,柜体为深色,加上玻璃门的结合,让真个空间更加通透,明亮,一目了然。

此空间为餐厅空间,宽度交款,做出了西厨的感觉,岛台和餐桌为一体,更加整体有连续性;由于光线不好,背景采用了灯箱的效果,既起到了装饰效果也使空间更明亮。

此空间为客厅空间,整体颜色以浅色为准,电视背景墙整面墙都以岩板为主,整体性更强,一整排的铝框展示柜,再加上玻璃的结合,装饰效果更强的同时也增加了收纳空间。

此空间为客厅空间,整体颜色以浅色为准,电视背景墙采用岩板的材质,整体家具都以极简为主,加上皮质的沙发,通过颜色的跳跃,让整个空间简洁,大方。更加舒适。

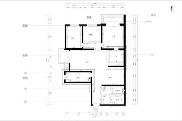
此空间为原始结构平面图,房子户型方正,采光极佳,窗户通风也很好,唯独餐厅空间采光较暗,利用率不高,浪费空间较多。

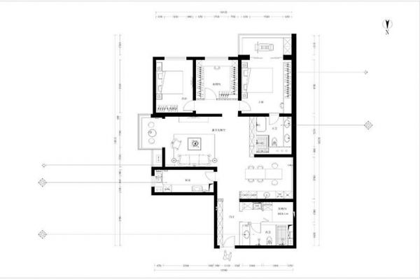
此空间为平面布置图,格局上没有很大改动,通过平面的布置摆放,来让空间更好用,居住更加舒服。
网址:华亭嘉园 现代简约 https://www.jiaju82.com/news-view-id-746033.html