首开·熙悦尚郡 奢华
发布时间:2021-03-17 19:01
案例详情 此风格为新奢华风格,客厅选择了镶玫瑰金条的墙板,增加奢华的味道的同时也增加了装饰感;厨房门做了隐藏功能,利用酒柜式厅柜来起到隐藏的作用,餐桌和岛台的完美结合,让空间变得更加活跃,多功能化;整个衣帽间采用了铝框+茶色玻璃的样式,中间增加了一个小岛台,利用率不仅高了还显得很庄重,有仪式感。

此空间为餐厅空间,空间里面门洞较多,通过墙板+隐藏门的结合,使墙面更加整体和谐;在厨房门的位置是通过移门厅柜的形式,既做到了隐藏效果也增加了功能性;餐桌采用的是石材材质,通过颜色和材质的搭配,来让整个空间更加统一,和谐。

此空间为一个书房兼客房的多功能间,整体做的是榻榻米,储物功能较大;墙面做了一大幅壁画,通过图案的选择和榻榻米颜色材质的搭配,来让整个空间更加有意境。

此空间为门厅,单独的玄关空间,让客餐厅之间有个过渡的地方,区域划分明确,空间独立性更好;玄关地面采用这种菱形铺法,黑白色搭配,和墙面顶面整体呼应,让一进门空间感觉整体更加明亮。

此空间为客厅,电视背景墙原有一个卧室门,通过墙板功能来达到隐藏的效果,让电视背景墙更加整体化,通过吊顶和地面的呼应,家具的配饰颜色,增加一些金色的装饰,让整体空间略显奢华。

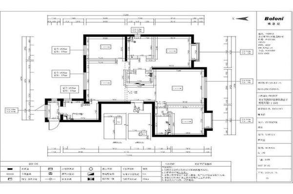
此图为原始结构平面图,标准的三居两卫户型,整体比较方正,南北通透,采光也不错;唯独缺点就是两个次卧面积较小,空间有些局促,利用率较低,通过部分格局的改造和墙体变动来让整个空间更加好用。

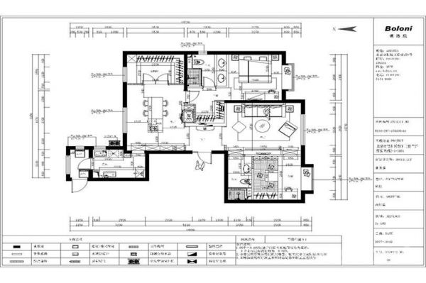
此图为改造后的平面图,从整体布局形式来看,空间划分明确,格局改动比较大,有一个小卧室改为了衣帽间,铝框+玻璃的形式,次卫原面积较小,通过卧室门的位置改变同时增加了次卫的空间;主卧衣帽间通过墙体变化,在餐厅位置嵌进了一个双开门冰箱+筒柜功能;通过改造后,使得整体空间利用率更高,用起来更加舒服。
网址:首开·熙悦尚郡 奢华 https://www.jiaju82.com/news-view-id-746071.html