昆仑域 奢华
发布时间:2021-03-17 21:00
案例详情 该户型采用轻奢风格。房屋整体色调运用了暖色调,墙面以墙板为主的设计再现轻奢风情,客厅米黄色板材辅以镶金线条,明快中不失富丽堂皇,设计师在家具陈设上也十分讲究,绒面质地的蓝色沙发,金属和石材完美结合的边几与电视背景墙,营造出低奢优雅的氛围。
客厅电视背景墙暖色岩板搭配少量的金属元素、石膏线条镶金边,再加上蓝色的软装家具作为点缀,轻松演绎轻奢之美,缔造出让人无限回味的空间。
餐桌选择带金属边框的与黑色大理石台面,同时搭配几把米黄色的椅子,再配一盏附有美感的吊灯,与墙面的护墙板相辅相成,整体给人一种高档餐厅的即视感。
卧室整体偏向暖色调,背景墙充满了线条感和柔和感,再配上一盏水晶的吊灯,使人眼前一亮,衣柜的色调也与床和床头柜的色调统一,使整个卧室充满着一股温馨和谐的氛围,让人忙碌拥挤的工作中得到一丝宁静
玄关设计依然遵循着客户的生活态度,营造出淡雅、高贵而低调、舒适而有情调的空间氛围。一块整面的大理石,与钛金条搭配出时尚的风格,简洁的造型柜的摆放,让入口玄关显得更美。
卧室仍以米黄色为主色调,拥有流畅线条的背景墙,床头柜上摆有具有现代生活气息的灯盏,透出不易察觉的奢华与浪漫。
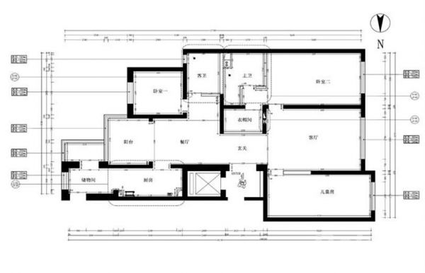
原始结构改动较小,新增加主卧储物间,收纳空间加大,让房间变得更加整洁干净,卫生间区域面积扩大,方便轻松便是设计的最终目标。
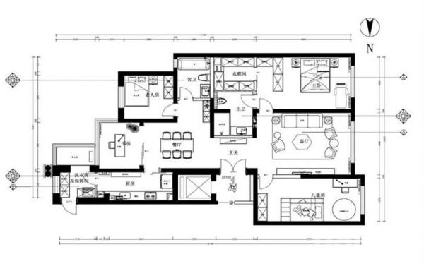
相对独立又完美相融,功能清晰,利用率高,主卧新增储物间,让收纳衣物变得轻松快乐,卫生间活动空间增大,实现干湿区域分离,使卫生间更加干净整洁。
网址:昆仑域 奢华 https://www.jiaju82.com/news-view-id-746079.html

