清景园 现代简约
发布时间:2021-03-17 21:01
案例详情 现代简约风格的设计让人眼前一亮。黑白永远是最经典的颜色,用亮色点缀部分空间使整体的装修更加具有层次感。

客厅在人们的日常生活中使用是最为频繁的,作为整间屋子的中心,客厅值得更多关注。装修的时候一定要把大部分的精力放在这个区域。

衣柜带来了极大地储物空间,木色的墙体与大量的木色家具营造了轻松温馨的基调,简约而不简单。

餐厅作为家的主要部分,布置好餐厅既能营造一个舒适的就餐环境,也会给整个空间增色。

休息室提供休息客人休息喝茶,闲暇时间的休息之处给人带来美好的体验,整个空间颜色简单,不做过多的修饰,给人带来心平气和感受。

浴室、厕所、洗脸间等各自独立的卫生间,称之为独立型。独立型的优点是各室可以同时使用,特别是在高峰期可以减少互相干扰,各室功能明确,使用起来方便、舒适。

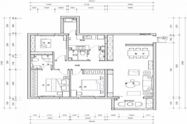
简单的三居室,现代简约风以黑白灰为主色调,简单大方,按照客户的要求在各个空间设计了强大的储物空间以便使用。
网址:清景园 现代简约 https://www.jiaju82.com/news-view-id-746082.html