华侨城 现代简约
发布时间:2021-03-17 22:00
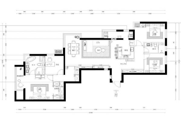
案例详情 巧妙运用定制功能,将背景墙书柜隐形门结合在了一起,解决了户型中过于狭长的问题,利用隐形门将主次卧活动空间巧妙分离,既保证主卧隐私性,又使得家庭成员可以围绕客厅进行交流。

整体展示柜做电视墙,既增加了收纳功能,又解决了主卧玄关墙凹陷问题,用展示柜门作为主卧隐形门,既保证整体美观性,又不失功能性,一举两得。

顶面灯线光源简单排线,一直延续到墙面,将顶面与墙面连接为一整体,墙面又选取灰色进行区分,现代感十足。

厨房延续客厅风格,简约大方,深灰色大理石台面不仅颜值高而且耐脏,白色的柜体,使得吧台用餐环境倍感舒适、浪漫。

充分利用卧室空间,单独隔离一衣帽间供女主人使用,剩余空间没有添加过多物品,而在靠窗一角简单的帮上一张单椅,就是一个很好的休闲区。

深色墙纸外加原木色墙板,凸显空间安静、舒适、简约质朴氛围,暖光简约造型的垂灯,温润了空间的硬度,点亮空间,散播暖意。

餐厅、客厅、厨房,三个空间做到完美结合,厨房也做到敞开式,三者连接不加任何遮挡,家庭成员在任何空间活动,都可进行互动交流,享受家人欢聚一堂的快乐时光。

空间虽大但过于分散,经过优化,将主卧部分作成一个大的套间,次卧客卧放在另一侧,保证主卧的舒适性,而客厅作为家庭成员在一起的活动区域在整个空间的中心位置,增加成员互动性与独立空间的私密性。
网址:华侨城 现代简约 https://www.jiaju82.com/news-view-id-746101.html