郦城小区 现代简约
发布时间:2021-03-17 22:01
案例详情 该户型采用现代简约风格,设计师在硬装修手法上注重简洁,再通过一些精致软装元素来点缀,在看似简洁朴素的外表之下折射出一种隐藏的高贵气质,来营造出舒适、通透、合理的使用空间,让整个空间透着一种清澈、静怡、宁和、雅致之美。

客厅墙面采用岩板背景墙作为客厅的颜值担当,整块的铺贴,没有零落的拼合,会让环境整体变得干净和谐,再搭配木质板装饰背景墙能让空间更加大气沉稳。

简洁 撞色 对比是现代化装修设计的一种手段。在浴室里我们在墙面与地面使用了白色瓷砖带有一点纹理来装饰。而在浴室柜我们用蓝色柜体白色台面。同时为了不单一我们在水龙头和淋浴房的把手上用金色的线条在修饰整个空间 ,简洁而不简单

餐厅的白墙配上深褐色的桌椅,再加上一幅蛋黄色装饰画的点缀,这种完美搭配让人怦然心动。白色代表着来自天的灵光,与高贵的黑色相辅相成,黑白为主的搭配,正好符合时下简约餐厅设计界的新理念。

脱离了常规设计的繁杂与浮夸,主卧以简约大气、实用舒适为主旨,棕色的木质地板与窗外的美景交汇融合,仿佛置身于大自然之中。

简单、浪漫、夸张、人性化是现代装修设计的一些原则,在这样的设计理念中,我们才能让自己天马行空的想法与实际相结合起来,打造出一款舒适的现代卫生间。

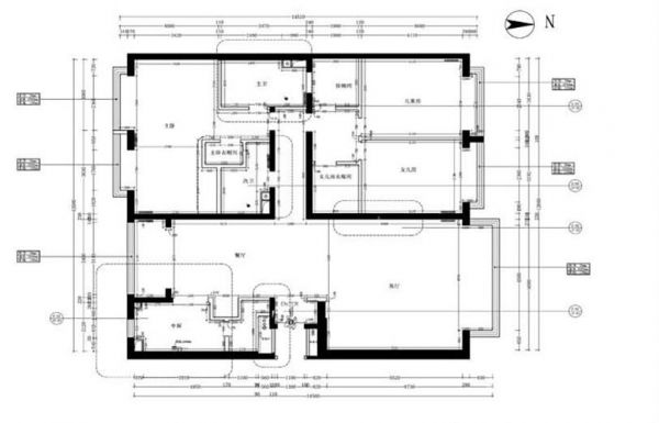
原始空间结构错杂,小区域空间较多,动线混乱,功能空间划分不明确,设计师根据以上问题,重新规划空间,合理布局。

重新布局后的功能空间划分明确,动线清晰,卫生间面积增大,隔开的单独储物间,大大增加了储物收纳的功能。
网址:郦城小区 现代简约 https://www.jiaju82.com/news-view-id-746103.html