中粮祥云 奢华
发布时间:2021-03-18 12:01
案例详情 本方案以新奢华风格为主,主题色调以米色为主,地面石材选用米黄色和深咖网波打线让空间看起来更富有层次感。墙面的石材装饰线条也起到了画龙点睛的作用。

暖色调的地板采用人鱼拼,浅咖色鱼骨地板沉稳复古,为环境增添一份柔软舒适的依附感;大面积的采光窗,让空间通透明亮

门厅精致的玄关,让人一进门就有一种眼前一亮的感觉,白灰色为主调,拱形垭口加繁复的石膏线和装饰柱,奠定了空间内的风格基调

古典的装饰线与黄铜,高级木饰面等一起配合营造出古典奢华美,室内色调明亮柔和,富有活力,代表了对生命的热爱

深色家具配上白色床品为卧室奠定素雅静谧的基调,纹理十足的墙纸和窗帘彰显优雅大气。

条形沙发组合与黑色方几占据居室中心,四周的大理石边几与深色地毯融为一体,呈现优雅质感

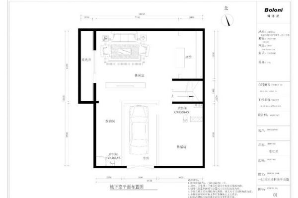
方案设计说明:本层为休闲空间,设有休闲室,舞蹈房,保姆间,卫生间,车库

方案设计说明:本层整层都是业主一家居住的空间,设有主卧,儿童房,卫生间
网址:中粮祥云 奢华 https://www.jiaju82.com/news-view-id-746172.html