西山艺境华墅 中式
发布时间:2021-03-19 02:00
案例详情 本案采用了现代的设计语言来表达东方的意境,用新中式风格打造出浓浓禅意的家居空间,隐去传统中式繁杂的设计表现,用减法来表达东方元素

干净清透的石材色营造出自然澄境,与木制的搭配间有着最契合的交点,空间内的陈设之物在光影藏纳间、在虚实互映中,交织出自然的诗意与东方的风雅。餐厅在端正的序列格局与简净的美学风貌中,构建起就餐礼仪与氛围。

宁静的空间意境,将中式和现代简约择善而取,光影的饱满感,情感的充盈,使得室内虚实相生。

地下室采光井内为休闲活动区,绿植墙,使得整个空间绿意盎然,进入室内有个小泳池,更加休闲。

主卧室是古典与现代的完美融合,床头背景墙整面采用中式的壁纸,金属线条分割,营造出简洁大气又不失高雅情调的居住氛围。

新中式风格的客厅,空间通透,更有待客的仪式感,大面积的窗户,广纳自然光线,光与影相携而至,复古与现代,山与海形意相连。

西厨的设计采用独立的岛台,与中厨分割,家居上使用一些金属质感的点缀,既不失中式的韵味,也不是时尚的感觉。

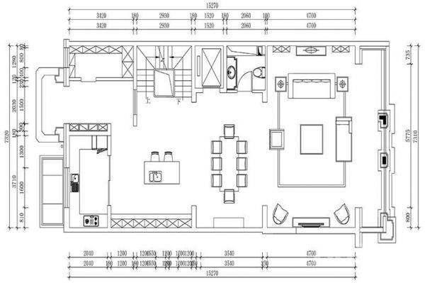
原始布局内客厅显得窄长,扩建阳台后整个空间变的宽敞,明亮,是整个屋子更加通透
网址:西山艺境华墅 中式 https://www.jiaju82.com/news-view-id-746340.html