北京华侨城 轻奢
发布时间:2021-03-20 14:01
案例详情 本案业主为一名经营奢侈品品牌的女性企业家,整体喜欢简单清爽的格调,但是又对一些简单造型的线条相当喜欢,所以最终本案风格定位是意式轻奢。

深灰木色和黑色岩板的点缀,让整个空间更显的宁静,没有繁复,没有杂念,更没有名利之争;莫兰迪灰蓝和卡其色的运用,让整体空间优雅中不失灵动,贵气中不失自然

暖咖色系的格栅墙板和白色墙板的融合,让老人房的空间在宁静中不失温馨贵气;吊线灯和床头洗墙灯光,总是能给空间辅以灵魂。

主卧床尾衣柜中的竖向开放格,打破了一面壁柜的拥堵单调的外观,也能增加整个空间的灵动感,也可以做一些饰品和包包的展示。

暖白的主色,深灰木色局部调色,轻重相宜,莫兰迪灰蓝色的窗帘和软饰,配合简单线条造型的墙板,让一切都是那么深邃那么自然。

沙发背景墙上的那一抹绿色,让整个空间在大气中更显得宁静自然;圆形挂墙饰物意寓圆满美好。

灰蓝色和粉色作为主色,让男孩房的空间在阳刚的同时,又不再那么生硬。粉色穿插在墙板和柜门上,视觉上拉大了卧室空间的面宽,让空间更显宽敞。

咖色的皮纹吧椅,在整个空间中起到增彩提亮作用的同时,又提升了整个空间的品味。

深灰木色置物层板配合墙板使用,辅助灯光,和白色柜子相得益彰;黑色地面更能衬托出整体白色的奢华和宁静。

灰蓝色墙板让整个空间在轻奢大气中更显宁静,吊线灯、洗墙灯、点光源的运用,让空间的照明更加有层次,也更便利。

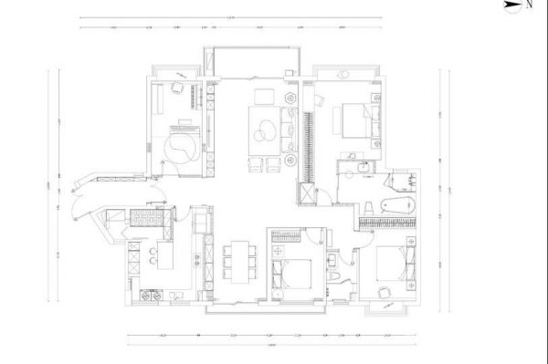
本案南北通透,户型方正;厨房空间内增加了一个保姆房,便于后期住家保姆照顾老人。
网址:北京华侨城 轻奢 https://www.jiaju82.com/news-view-id-746617.html