鲁谷路74号院 现代简约
发布时间:2021-03-20 19:00
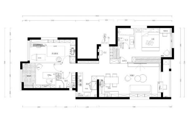
案例详情 本案建筑面积112㎡,套内使用面积95㎡,常住人口为业主中年夫妻两口人。整体比较喜欢带点轻奢的简约风,喜欢一定程度的灰色,所以本案整体颜色定位为以开司米灰为主色,利用不同色彩层次来营造一种简约、时尚的氛围。

巧克力色铝框透明玻璃门内的烟熏橡木,辅以灯光,让整个沙发背柜的色彩更加有层次。餐岛一体的西厨,让整个空间更有品味。

格栅墙板、隐藏门、巧克力色铝框透明玻璃展柜、超薄挂墙电视柜,让整个空间的色彩相互连贯,相互辉映,又毫无违和感。

开司米灰柜门和烟熏橡木箱体的虚实结合使用,让书房内的色彩和客户原有的木质家具毫无违和感。榻榻米的使用,也让空间利用的可能性更丰富。

客卫整体空间较小,所以使用了整体白色调;黑色极窄边框的淋浴屏、黑色的龙头花洒,让空间色彩更加有层次。

床头半高背景墙板,辅以洗墙灯光,配合吊线灯的使用,让整个空间时尚雅致;床品和窗帘的那一抹莫兰迪灰绿,让整个休息空间显得更加宁静。

常住人口只有业主夫妇二人,所以保留一个主卧室、书房,将其中一个房间更改为多功能室,兼顾健身娱乐功能。厨房半开放式设计,让客厅空间更显得大气。
网址:鲁谷路74号院 现代简约 https://www.jiaju82.com/news-view-id-746640.html