御景山 现代简约
发布时间:2021-03-21 21:01
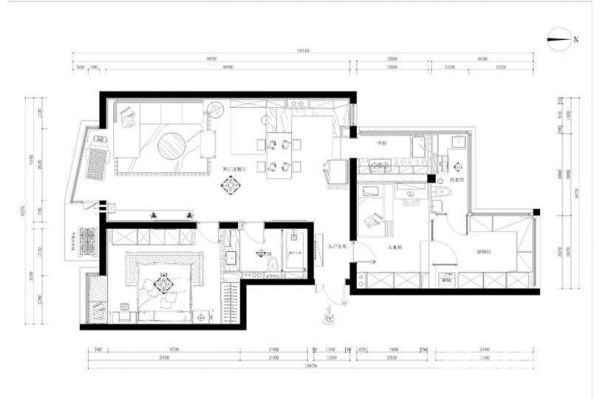
案例详情 本设计为现代简约风格,在设计方面,以客户性格特点及爱好为核心突破点,把空间功能分区合理化,以电视墙这一设计亮点,串联起整个空间,使空间更加大气美观。同时,简洁却富有质感的软装搭配又营造出一种低调而有品质的生活氛围。

米白色调的电视主题墙,辅以反光灯带的晕染,流线型的电视柜,朴实的卡其色沙发,都刻尽了男女主人朴实和温和,沙发上的蓝色靠枕,也代表着男女主人内心中的那不曾缺失的宁静和幸福。

房间顶部用充满童趣的造型顶灯和灯带,替代了传统的照明顶灯,让整个吊顶更加简洁清爽,充满趣味;整个空间蓝色为主色调,卡其色为辅助色调,配合蓝白色的儿童双人上下组合床,宁静纯洁中更能体现其幸福感;配设的黄色座椅又能带给空间一种快乐乐观的感觉氛围。

主卧以卡其色系为主,黑檀色作为辅助颜色;半高床头墙板配以灯带辅助,吊灯安静的落在挂墙床头柜的上方,利用让空间更加和谐;黑檀色的挂墙式写字台配以两侧卡其色衣柜,可见男女主人的温和朴实及怀旧保守。

此卧以卡其色系为主,白色作为辅助颜色;半高床头墙板配以灯带辅助,吊灯安静的落在挂墙床头柜的上方,利用让空间更加和谐。

此卧以卡其色系为主,白色作为辅助颜色;床头墙板在吊顶灯的照射下朴实又不失温馨,窗户下做了收纳柜充分合理的利用了空间,使空间和谐完整。

男女主人喜欢朴实宁静的生活,餐厅里的这一组吧台式餐边柜,尽显他们的生活韵道;餐桌上的吊灯是此处空间中唯一的一个装饰灯,亮铜的质感让人感觉到简约中的一点奢华。

空间的整体规划自然而利落,设计一切围绕着创新、实用、唯美、细致、环保、极简来呈现和表达,两室两卫的格局使每个房间都更加的舒适,尤其是中西厨区域的分割,是女主的最爱。
网址:御景山 现代简约 https://www.jiaju82.com/news-view-id-746684.html