门店鉴赏丨临沂金科瓷砖,从空间设计中诠释瓷砖之美!
发布时间:2021-06-11 09:51
热爱生活的人
不会辜负每一寸空间
金科瓷砖山东临沂店,从空间设计中发现生活智慧,顺势而为。用极简线条还原时尚设计,营造舒适实用的生活空间。

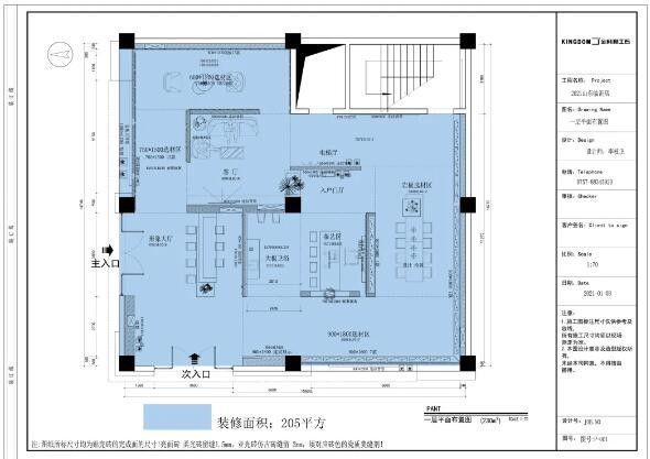
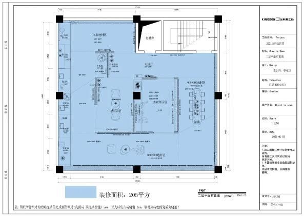
平面布置图

△ 一层平面布置图

△ 二层平面布置图
项目介绍
名称:山东省临沂市金科旗舰店
坐标:山东省 · 临沂市 · 华强建材市场
面积:500㎡
01 外立面 金科

门市外观,LOGO「金科瓷砖」招牌描绘亮眼视觉,并以灰色奢石质地营造沈稳优雅的氛围。
02 品牌形象区金科

品牌形象区位于门店的入口,迎客入店,接待洽谈。白色岩板和灰白色台面,温润质感,素雅明快,尽显优雅。
03 产品展示区金科

通过灯光变化营造舒适的氛围,产品陈列自然有序,每一款瓷砖的肌理、釉面、质感完美呈现于顾客面前。多样化的产品展示手法,可满足顾客的不同喜好和选择。
04 模拟间 金科

岩板连纹背景墙搭配木质储物柜,随处散发着优雅气息,温柔地叙说生活的惬意。不大的模拟空间,重新解构出品质人居生活体验。触手可及的感官细节,传达着舒适的生活方式,让一切浮华止步家门之外。


金科瓷砖临沂店,让设计触达生活,让体验感赋予设计更多能量。将简雅的质感美充盈在每个角落,以简约时尚设计,营造舒适空间。
网址:门店鉴赏丨临沂金科瓷砖,从空间设计中诠释瓷砖之美! https://www.jiaju82.com/news-view-id-758810.html

