95后老婆装修太厉害,满屋装柜子效果真棒,再也不愁房子小了!
新房面积是89平米的,公摊面积真大,最后装修可麻烦死了,首先想到的就是新房的收纳问题,小居室的房子没有足够的存储空间只会越住越小。老婆是95后,很有想法,做事大胆,最后将新房装修成这样。95后老婆装修太厉害,满屋装柜子效果真棒,再也不愁房子小了!

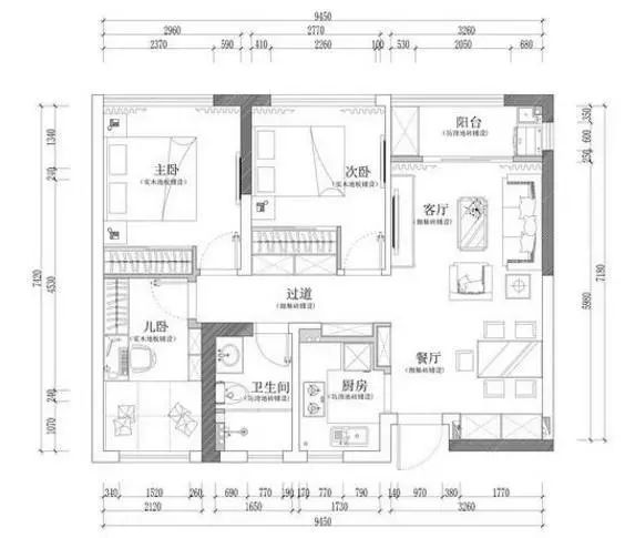
房子的户型图

新房装修以白色为主色调,很像95后的风格,追求干净整洁很有活力。深色的实木桌椅稳重大气,进门就能看到餐厅和客厅,户型就是这样所以只能这样装修了。两个柜子分散在不同的方位,但是看起来协调,马赛克的瓷砖看起来是不是有几分时髦感。

户型小的房子自然要装中央空调,传统的空调不仅占空间还不好看,还是这样的中央空调合理,只需要装在墙壁里面就行了,平时使用也方便。墙壁的漆有点暖色调,看着就觉得温馨,上面的图案是一整套的,还有个鹿头,寓意美好。

厨房,设计跟普通家庭没什么区别,但是也有很多值得借鉴的,比如墙壁上的挂钩置物架,还有就是装修之前预留了冰箱的位置,都能够使厨房看起来有条理。台面是大理石材质的,虽然上面有波点,但是材质选的好更上档次。

客厅,阳台是一整面的,面积大所以采光好。电视背景墙上的图案还有花纹只是为了装修不那么单调。吊顶做工相对来说简单,但是吊灯挺精致的,灯光比较明亮,奢华大气。

卧室,满满的中式风格装修,庄重大气,窗户尺寸还是挺大的,采光好,室内的柜子也不少呢,不需要担心东西太多容纳不了。

卧室里面的内嵌式柜子,白色的一直到顶部 ,节省不少空间,平开门的封闭性强,所以不用担心落灰的情况。

书房,还是满屋的柜子,两个立式的内嵌式柜子,有个精致的小书桌,这样的书房真是解决了不少的麻烦,蓝白色的装扮清新自然。

卫生间,灰白色的瓷砖更显档次,淋浴房做了封闭式的处理,进行隔断之后卫生间就不会觉得潮湿,还是挺方便的。
(本文由齐家小编编辑,图片来源于网络,如有侵权请告知我们删除!)
网址:95后老婆装修太厉害,满屋装柜子效果真棒,再也不愁房子小了! https://www.jiaju82.com/news-view-id-761429.html

