3套农村自建房设计图三层 每套都是经典任君挑选
随着二胎政策的开放,很多人在建房时都会考虑三层的建筑,这样既时尚大气,又能满足家人的居住需求。那么农村三层自建房设计图是怎样的呢?下面我们就为大家推荐3套农村自建房设计图三层,希望你们会喜欢。

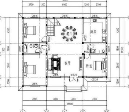
农村自建房设计图三层(一)
图片介绍:这个设计图非常适合小宅基地,占地面积在90平米左右,共三层,共有6个卧室,可以满足业主的居住需求。二楼、三楼有独立的大阳台,可以晒东西,非常的方便。
房屋基本信息说明:
占地面积:10.6m*8.5m,一层占地90平方米左右。
建筑层高:三层。
建筑高度:14.0米(含屋顶)。

设计功能:
一 层:大厅、厨房、餐厅、老人房、厕所。
二 层:大厅、卧室(带厕所)、卧室x2、书房、厕所、阳台。
三 层:大厅、卧室(带厕所)、卧室、书房、厕所、大阳台。

农村自建房设计图三层(二)
图片介绍:这是一款小户型中式设计图,面宽大约8米,布局合理造价低,造型简洁大方。而大面积的落地窗,既可以让室内采光更好,又能营造出高品质的居住环境。
房屋基本信息介绍:
占地面积:8.4m*13.5m,94.83平方米左右。
建筑层高:三层。
建筑高度:12.7米(含屋顶)。
设计功能:
一层户型:大厅、厨房、餐厅、卧室、厕所。
二层户型:大厅、储物间、卧室x2、厕所、阳台。
三层户型:储物间、卧室x2、厕所、阳台。

农村自建房设计图三层(三)
图纸介绍:这是一款欧式风格的设计图,主体报价在25万左右。整个外观非常的简洁大气,给人一种明快视觉感。而多阳台的设计,既多了活动空间,又可以让室内更加的明亮。
房屋基本信息说明:
占地面积:9m*11.8m,94平方米左右。
建筑层高:三层。
建筑高度:12.48米(含屋顶)。
设计功能:
一层户型:门厅、走廊、大厅、杂物间、休闲室、娱乐室、卧室、厕所。
二层户型:卧室(带书房)、卧室x3、厕所、阳台。
三层户型:卧室(带书房)、卧室x2、厕所、阳台。
文章总结:好了,关于3套农村自建房设计图三层的相关知识就介绍到这里了,有需要了解更多资讯的朋友,请继续关注齐家网,后续我们将有更好、更精彩的内容为您奉上。
什么,装修还用自己的钱?!齐家装修分期,超低年利率3.55%起,最高可贷100万。立即申请享受优惠
网址:3套农村自建房设计图三层 每套都是经典任君挑选 https://www.jiaju82.com/news-view-id-774757.html

