获奖案例 | 北京市房山区农户“煤改空气源热泵”项目
第二期分享的案例为《北京市房山区农户“煤改空气源热泵”项目》,该项目在2017年度清洁供暖工程项目评选中一举获得“优秀工程奖”、第二届空气源热泵供热系统设计大赛中收获“户式供暖最佳应用奖”。

佛山欧思丹热能科技有限公司(下称:欧思丹)是热泵行业中最早参与“煤改电项目”的企业之一。2014年以来,欧思丹中标了342个能源升级改造项目,多次荣获“煤改电清洁能源优秀品牌”称号,先后获邀参与了“住建部科技计划项目——空气能热泵替代燃煤供暖课题”、“住建部——《户式空气源热泵冷暖两联供设计施工技术导则》”、“北京地方标准《户式空气源热泵供热系统技术规程》”等编写研究工作。

项目概况
项目名称:北京市房山区大石窝镇三岔村农户“煤改空气源热泵”项目
房屋情况:采暖面积约为126m2。北墙厚370mm, 东、西、南面墙厚240mm,采暖末端设备为钢制散热器系统。
建筑节能:于2014年进行外墙保温改造50mm。冬季供暖设计:
(1)设计室内温度18℃±2℃
(2)供水温度48℃,回水温度43℃
施工单位:佛山欧思丹热能科技有限公司
完成时间:2015年10月
项目资料
甲方要求
空气源热泵机组按照远程全自动无人值守型配置。在每一机组就地设置现场控制单元和一些必要的监测仪表,对热力系统进行监测与控制,以便将相应信号远传到中央控制室,并接受调度系统的监测与控制,保证热网的安全、稳定和经济运行。
设计依据
《民用建筑供暖通风与空气调节设计规范》(GB 50736-2012)
《采暖通风与空气调节设计规范》(GB 50019-2003)
《民用建筑节能设计标准》(JGJ 26-2010)
《通风与空调工程施工质量验收规范》(GB 50243-2002)
《建筑给水排水及采暖工程施工质量验收规范》(GB 50242-2002)
《严寒和寒冷地区居住建筑节能设计标准》(JGJ 26-2010)
《暖通空调系统设计手册》
设计人员现场测量绘制的草图等资料
气象参数
本设计是根据当地气候、环境和建筑进行计算后,对某一房间或空间内的温度、湿度、洁净度和空气流动速度等进行调节与控制,从而为用户创造安全环保、舒适节能的和谐环境。其计算参数如下所示。
(1)室外空气设计参数
查《民用建筑供暖通风与空气调节设计规范》北京市室外空气计算参数值见表1:

(2)室内计算参数
采暖建筑的室内计算参数见表2:

热负荷计算
在进行低温空气源热泵选型时,要考虑管道热量损失。采暖热负荷汇总见表3:

设备选型
经热负荷计算可知该建筑冬季散热器采暖总热负荷为9.27kW,以上设计能满足用户需求。对照KFXFC- 018SI参数,A-12W48时,机组制热量为9.9kW/h。
冬季供暖选型:9.27kW÷9.9kW≈1台
制热能力曲线及制热能效曲线
该用户反馈增加缓冲水箱相当于系统能量储存增加,系统温度变化平稳,主机的启停次数自然降低了,使用寿命延长,还解决了管道存留气体的问题。

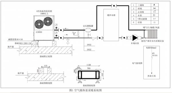
空气源热泵采暖系统图(见图1)

安装效果图


项目特色
该用户反馈增加缓冲水箱相当于系统能量储存增加,系统温度变化平稳,主机的启停次数自然降低了,使用寿命延长,还解决了管道存留气体的问题。
使用效果
节能
超低温环境下改善制热量COP达200%以上,并且运行成本相对电锅炉可节约75%以上,相对燃气锅炉可节约50%以上,相对燃煤锅炉可节约30%以上,是未来家庭供暖的选择。
环保
替代锅炉燃煤采暖,减少污染,减少雾霾产生及二氧化碳排放。
舒适性
与普通空调制热相比,散热均匀,无热风直接吹到人体,不会轻易带走皮肤表层水分,室内舒适又不易有干燥感。
安全可靠
与一般采暖设备比较大大降低了运行费用,同时也避免了采用燃气或电采暖设备等引起的危险。
网址:获奖案例 | 北京市房山区农户“煤改空气源热泵”项目 https://www.jiaju82.com/news-view-id-776889.html

