2套农村小户型自建房设计图 让小户型秒变大豪宅
小户型由于面积有限,在设计时需要花费更多的心思,这样才能充分的利用空间,不会造成浪费。那么农村小户型自建房怎么设计呢?下面我们就为大家推荐2套农村小户型自建房设计图,让你的小户型秒变大豪宅。

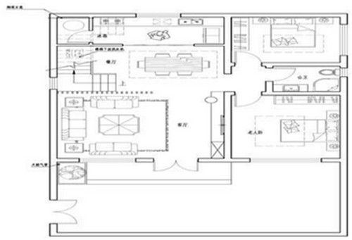
第一款:新中式农村小户型自建房设计图
房屋风格:中式
占地大小:100㎡
主体报价:27万
房屋层数:二层
建筑占地:10m×10m
建筑面积:179㎡
房屋结构:砖混结构
功能间:露台、书房
图片描述:房屋的设计风格为新中式,墙面采用了仿清水混凝土漆+白色真石漆,这样的搭配非常的经典耐看。庭院划分休闲区和植物区,空间界限分明。院门为深木色,既符合整体风格,又凸显品味。

功能分布:一层入户门进入就是大厅,大厅与吃饭厅用隔断隔开,既可以让空间界限更加分明,又可以让室内更加的宽敞、舒畅。厨房与吃饭厅相邻,便于业主就餐。一层两间卧室可供老人居住。二层为主卧、书房、起居室、露台,可满足业主的居住和休闲需求。

第二款:简欧农村小户型自建房设计图
房屋风格:欧式
占地大小:101㎡
主体报价:28万
房屋层数:三层
建筑占地:10m×10.1m
建筑面积:351㎡
房屋结构:框架结构
功能间:露台
图片描述:房屋采用了简欧式的设计风格,看起来非常稳重大气。一层立面采用了文化砖+大理石进行装饰,二层立面主要以大理石砖为主,跟一层形成强烈的对比。再配上打开窗设计,则可以让室内更加的通透明亮。后院的绿化区,可以给生活增添一点生机。

功能分布:一层主要为老人房和公共区,大厅、就餐厅、厨房呈L型分布,既相互连通,方便行走,又可以让室内更加的宽敞通透。二三层为居住空间,共设8间卧室,可满足业主的居住需求。平屋顶可以作为露台使用,方便业主晾晒衣物或是聚会。
文章总结:好了,关于2套农村小户型自建房设计图的相关知识就介绍到这里了,有需要了解更多资讯的朋友,请继续关注齐家网,后续我们将有更好、更精彩的内容为您奉上。
什么,装修还用自己的钱?!齐家装修分期,超低年利率3.55%起,最高可贷100万。立即申请享受优惠
网址:2套农村小户型自建房设计图 让小户型秒变大豪宅 https://www.jiaju82.com/news-view-id-777670.html

