新农村自建房设计图 新农村房屋怎么设计好
随着新农村建设的开展,农村的房屋也越建越漂亮了,那么新农村房屋怎么设计好呢?下面我们就为大家推荐3款新农村自建房设计图,希望你们会喜欢。

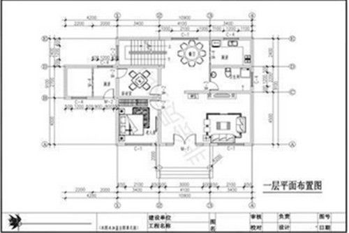
一、新农村自建房设计图
房屋风格:现代
占地面积:96㎡
主体估价:30万
房屋层数:二层
建筑大小:10.8m×8.9m
建筑面积:188㎡
房屋结构:框架结构
图片描述:这是一款现代风格的设计,墙面主色调为白色,再配上大面积的玻璃,则可以增加室内的采光和通风。而平屋顶+双坡屋顶的社会姐,则可以让房屋更加的大气时尚。此外庭院一侧的楼梯,可直通平屋顶,业主可以在上面种植花草和泡茶。

功能分布:一楼为公共区,设置有就餐厅、会客厅,厨房与楼梯间相连,餐厅与客厅相连,客厅与餐厅相连。二层主要为居住区,设有三间卧室,北卧室为主卧拥有阳台和独立卫生间。

二、新农村自建房设计图
房屋风格:欧式
占地面积:99㎡
主体估价:22万
建筑大小:11m×9m
建筑面积:190㎡
房屋结构:砖混结构
图片描述:这是一款欧式设计的房屋,外墙颜色比较鲜明,再配上白色腰线作为隔断,则让房屋色彩更加的丰富。而斜顶式屋顶+黑色琉璃瓦,则可以让房屋营造出一种古朴的气息。

一层主要是公共活动区域和一间卧室,餐厨空间相邻设计,便于居住者就餐。将楼梯下方空间利用成储物室,提高了空间利用率。
功能分布:一楼为公共区,设置了餐厅、厨房、卧室、收纳室,其中厨房和餐厅相连,这样方便业主就餐。二楼为居住区,设置了三间卧室和一间书房,书房独立在二层,让业主可以安静的看书。

三、新农村自建房设计图
主体估价:25万
建筑大小:10.9m×9.1m
建筑面积:160㎡
图片描述:这是一款现代风格的房屋,整个立面颜色非常的丰富,一层立面以深色为主,二层为白色,再配上深色的琉璃瓦,则可以让整个色系更加的和谐统一。

功能分布:一楼为公共区,从入户门进入之后,就可以看到宽敞的客厅,而客厅边上设计了一间老房人,可供老人居住。二层为居住区,设有两间卧室和一间书房,南侧还有一个大露台,方便居住者观景和晾晒衣物。
文章总结:好了,关于2021年新农村自建房设计图以及新农村房屋怎么设计好的相关知识就介绍到这里了,有需要了解更多资讯的朋友,请继续关注齐家网,后续我们将有更好、更精彩的内容为您奉上。
什么,装修还用自己的钱?!齐家装修分期,超低年利率3.55%起,最高可贷100万。立即申请享受优惠
网址:新农村自建房设计图 新农村房屋怎么设计好 https://www.jiaju82.com/news-view-id-777849.html

