3套自建房平面图 带您体会三层别墅的独特魅力
众所周知,在建房时需要请人设计平面图,之后再根据平面图进行施工。那么自建房怎么设计呢?下面我们为大家推荐3套自建房平面图,希望你们会喜欢。

2021年自建房平面图(一)
房屋信息:
开间:8.6米
进深:10米
占地面积:86平米
建筑高度:10.85米
图片描述:这款房屋的外观看起来 非常的简单大气,一二层的浅黄色文化瓷砖+三楼的浅黄色涂料,这样既有层次感,又可以让色系更加的丰富,给让眼前一亮的感觉。而白色的隔离带,则能更好进行分层和点缀。红色的斜顶琉璃瓦,既明亮又方便排水。
平面布局图:
这套房子的面积不大,只设计了5建套房,其中包括客厅、就餐厅、厨房和多个起居室,可满足业主的不同需求。此外在厨房还开了一个后门,方便业主进出。三层还有一个大露台,方便业主晾晒衣物和观赏风景。

2021年自建房平面图(二)
错落有致的外形,弧形设计的墙面,处处体现了设计者的用心,设计尺寸:开间11米,进深9.7米,占地面积105米,建筑高度13.5米。
房屋信息:
开间:11米
进深:9.7米
占地面积:105米
建筑高度:13.5米。
图片描述:这款房屋看起来非常的大气简约,底层采用了复古砖,这样既好看又方便打扫卫生。二三层的浅色墙漆,既清新又舒适。而错落有致的外形,弧形设计的墙面,处处彰显设计者的用心。
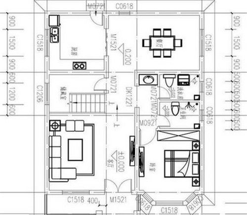
平面布局图:
这款房子总共有5间卧室,都分布在东侧。而挑空式的客厅设计,看起来非常的豪华。此外多起居室、阳台、露台的搭配,则方便业主进出。厨房和餐厅相连,则方便业主就餐。

2021年自建房平面图(三)
房屋信息:
开间:11米
进深:11.5米
占地面积:124平米。
图片描述:这款房屋的外墙采用了大方块的瓷砖进行装饰,这样既时尚大方,又方便打扫卫生。而大落地窗的玻璃,则可以增加室内的采光,让室内更加的明亮。而二三楼的露台,则可以晾晒衣服及观赏风景。红色的琉璃瓦,则可以增加亮点,给让眼球一亮的感觉。
平面布局图:
这款房屋的布局和前面两款不同,其房屋比较多,共设计了10间卧室,家里有再多人也够住。从玄关进入之后就是客厅、厨房、餐厅等多功能区。而阳台、露台、晾衣亭则各司其职、分工明确。

文章总结:好了,关于3套自建房平面图的相关知识就介绍到这里了,有需要了解更多资讯的朋友,请继续关注齐家网,后续我们将有更好,更精彩的内容为您奉上。
什么,装修还用自己的钱?!齐家装修分期,超低年利率3.55%起,最高可贷100万。立即申请享受优惠
网址:3套自建房平面图 带您体会三层别墅的独特魅力 https://www.jiaju82.com/news-view-id-778128.html

