l型农村自建房设计图 L型农村自建房怎么设计
众所周知,不同类型的房屋其设计方法也是不同的,那么L型农村自建房怎么设计呢?下面我们就为大家推荐2款l型农村自建房设计图,希望你们会喜欢。

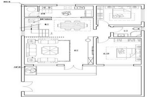
第一款:l型农村自建房设计图
房屋风格:中式
占地大小:100㎡
主体报价:27万
房屋层数:二层
建筑占地:10m×10m
建筑大小:179㎡
房屋结构:砖混结构
功能间:露台 书房
图片描述:这款房屋采用了新中式的设计风格,外墙颜色比较简单,只采用了仿清水混凝土漆和白色真石漆,这样的灰白黑的搭配,看起来非常的大气经典,不容易过时。庭院摆放了休息桌椅、种植了草坪,空间界限分明,又和谐统一。

功能布局:一层为公共活动区域,入户门进入之后就是客厅,客厅与餐厅采用了隔断进行了分割,既确保了视线的完整性,也让空间看起来更加的宽敞。厨房与餐厅相邻,方便业主就餐。一层设有两间卧室,方便老人居住。二层主要为私人空间,设有一间卧室、书房和起居室,露台可做阳光房使用。

第二款:l型农村自建房设计图
房屋风格:欧式
占地大小:101㎡
主体报价:28万
房屋层数:三层
建筑占地:10m×10.1m
建筑大小:351㎡
房屋结构:框架结构
功能间:露台
图片描述:这款三层楼的房屋采用了欧式的设计风格,整体看起来非常的稳重大气,一层立面采用了深色的瓷砖,二、三层采用了仿大理石面砖,与一层形成强烈的对比,整体轮廓清晰明确。而大开窗的设计,则可以让室内更加通透,采光更加的良好。入户门和后院门的立柱,则增加了进出门的仪式感。

功能分布:一层为老人房和公共活动区,从入户门进入就是客厅,而客厅、吃饭厅和厨房呈L型分布,两两相互连通,方便业主行走。二三层为居住区,共设有八间卧室,可满足业主的居住需求。平屋顶的设计既可以作为露台使用,又方便业主晾晒衣物或聚会。
文章总结:好了,关于l型农村自建房设计图以及L型农村自建房怎么设计的相关知识就介绍到这里了,有需要了解更多资讯的朋友,请继续关注齐家网,后续我们将有更好、更精彩的内容为您奉上。
什么,装修还用自己的钱?!齐家装修分期,超低年利率3.55%起,最高可贷100万。立即申请享受优惠
网址:l型农村自建房设计图 L型农村自建房怎么设计 https://www.jiaju82.com/news-view-id-778849.html

