一层半农村自建房怎么设计 农村一层半小别墅设计大全集
一层半房屋的空间有限,所以在设计上要多花一点心思,那么一层半农村自建房怎么设计呢?下面我们就为大家推荐3款农村一层半小别墅设计图,希望你们会喜欢。

一层半农村自建房怎么设计
图片描述:这款房屋整体设计比较简单,但在细节上处理的很好,入门处大气的罗马柱和走廊,既有特色,又方便业主活动。而层叠式屋顶设计,看起来非常有活力。楼顶的隔楼,可作为书房使用,避免嘈杂声影响业主看书、办公。

功能分布:入户是玄关,左边是大厅、右边是卧室,走过客厅,就是一间卧室和独立书房,右边是厕所和小卧室,厨房和餐厅在最里面,可以走偏门,直接和小院相通。此外还设置了一间杂物室,方便业主存放东西。

一层半农村自建房怎么设计
图片描述:这款房屋占地大小刚好合适,开间16米,进深10米,占地143平米左右。外墙采用的黄色瓷砖,既好看又方便施工。入户的立柱和花瓶柱,则可以起到点缀的作用,让色彩更加和谐统一。

功能分布:入门是吃饭厅,客厅和吃饭厅相连,对面是厨房,正面设置了两间卧室,分别位于建筑的两角,东北角设置了一间小卧室,西北角是公厕,楼梯间做杂物室,阁楼可作为书房。

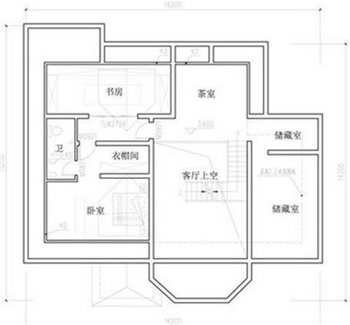
一层半农村自建房怎么设计
图片描述:这款房屋的设计比较沉稳大气,厚重感十足,黄色的外墙配上豪华的入户门,看起来很有欧式的气息。而凸出式的客厅设计,很有特色。红色的琉璃瓦,既方便排水,又可以给人眼前一亮的感觉。

功能分布:入户门进入之后就是玄关、客厅、吃饭厅和厨房了,在周围还设置了三间卧室,其中一间带衣帽间和厕所,一间带厕所,另有公厕和杂物间,杂物间与车库相连,阁楼还设了一个大套房,自带书房、衣帽间和厕所,另设茶水间和大型储藏室。
文章总结:好了,关于一层半农村自建房怎么设计以及农村一层半小别墅设计大全集的相关知识就介绍到这里了,有需要了解更多资讯的朋友,请继续关注齐家网,后续我们将有更好、更精彩的内容为您奉上。
什么,装修还用自己的钱?!齐家装修分期,超低年利率3.55%起,最高可贷100万。立即申请享受优惠
网址:一层半农村自建房怎么设计 农村一层半小别墅设计大全集 https://www.jiaju82.com/news-view-id-779775.html

