NINA的新家|装修日记-施工篇:大胆改造,慢慢创造一个家
hi~我是nina~
现在的我,越来越觉得,装修就是包括功能、材料、工艺、造价、审美、艺术、精神等各种因素综合的创作。所有的一切,都是为了努力去创造美好。
七月,万物在生长,这是一个突飞猛进的季节。我家的装修在有着丰富经验的装修工长的保驾护航下,顺利地完成了基础装修,尤其是完成了重中之重的墙体拆改和水电工程——真正的专业的人做专业的事,期间我也乐意做个甩手掌柜,只管配合记记流水账就行。
现在将我家墙体拆改和水电工程装修心得分享给大家~
一举三得的墙体拆改
我家套内不到60平米,虽然不是南北通透,但是东西通透也比较凉爽。整体功能分区比较明显,但是我希望能够在有限的空间里,增强使用面积。
因为厨房不大,所以我希望洗衣机能够放进卫生间,我不想入户门直接对着卫生间门,虽然我是唯物主义,但是也相信风水。这两个地方,华耐的设计师都给出了很成熟的建议。
尤其是卫生间墙体的S型拆改,不仅拓宽了洗衣机的位置,也把门的位置进行了右移,同时还保留了部分餐边柜的位置。简直一举三得!
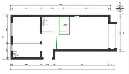
墙体拆改设计图▼:


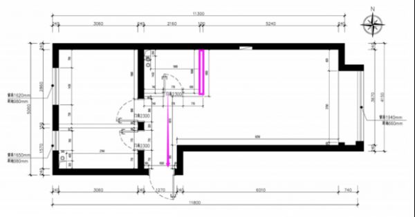
墙体拆改后实景图▼:

水电工程
其实很多第一次装修的宝宝和我一样,对水电的布线完全外行。我身边很多朋友家中都是水电布线走地或走顶,但是这次专属于我的华耐家居工长告诉我,一般来说,水走顶,电走地是最好的布局。

因为水电改造的费用非常的高,一般都是按照工程量和材料来计算,如果水电改造的时候全部走顶的话,一般的费用会比我们走地多出一倍,而且我们还需要做吊顶进行遮挡,就会比正常预算高出很多费用了。所以一般“电走地”也会节约很多的管道和线路。
水路走顶,是因为水管的管道全靠关卡来做固定,所以说水的冲击力会使水管进行摇晃,短时间是看不出来的,但是长久以后会发现出现开裂漏水的情况。最经常发现的就是卫生间的水管漏水了。如果水管是走地的话,一般我们都很难发现水管漏水,所以师傅才会建议我们水管走顶会更加的合适,发现漏水也可以第一时间进行维修。

不过还好我家是新房,水管改动不大,而且我家是一楼,楼下没有住户,水走地是最经济实惠的~
从坚定筑造梦想之家,到一点一滴勾勒成形,
让我收获了很多难以言喻的微妙体验。
本期的装修分享就到这里啦,
下期会跟大家分享我的家装选材攻略。
选择困难症的福音!
瓷砖怎么选?木门怎么选?
地板怎么选?浴室柜怎选?
...
我将痛快跟大家分享,
期待大家关注喔~
网址:NINA的新家|装修日记-施工篇:大胆改造,慢慢创造一个家 https://www.jiaju82.com/news-view-id-780289.html

