普通农村自建房设计图 农村砖混二层自建房怎么设计
在进行房屋设计时除了要注意外观色彩搭配之外,还要注意空间布局问题,这样才能设计出美观实用兼具的房屋。那么砖混二层自建房怎么设计好呢?下面我们为大家推荐3款普通农村自建房设计图,希望你们会喜欢。

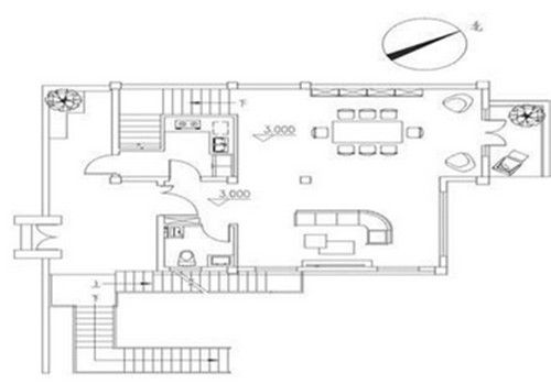
第一款:普通农村自建房设计图
房屋风格:现代
占地大小:96㎡
预估造价:30万
房屋层数:二层
建筑占地:10.8m×8.9m
建筑面积:188㎡
房屋结构:框架结构
图片描述:这款房屋采用了现代的设计风格,立面以白色为主,再搭配上大面积玻璃,则能营造出通透干净的气息。屋顶采用平屋顶+双坡屋顶的搭配,看起来非常的时尚。在庭院一侧设有楼梯,可直通平屋顶,方便业主晾晒衣服或欣赏室外美景所用。

功能布局:
一层为公共活动区,设有吃饭厅和会客室,厨房与楼梯间相邻,吃饭厅和客厅相邻,客厅和吃饭厅相邻,既方便业主活动,视野也更宽敞。
二层为居住空间,共设三间卧室,北侧卧室为主卧(带独立阳台和厕所)。

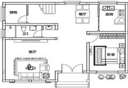
第二款:普通农村自建房设计图
房屋风格:欧式
占地大小:99㎡
预估造价:22万
建筑占地:11m×9m
建筑面积:190㎡
房屋结构:砖混结构
图片描述:这款房屋采用了中式的设计风格,一层立面以深色为主色调,再配上二楼白色的墙砖,和白色的腰线进行隔离,则可以让立面造型更加的丰富。入户门居中设计,方便业主进出。斜顶式屋顶+黑色琉璃瓦的搭配,则可以营造出浓郁的中式气息。

功能布局:
一层为公共活动区域,设置了老人房、吃饭厅、厨房,而餐厨相邻的设计,便于居住者就餐。楼梯下方的储物室,能有效提高空间的利用率。
二层为居住区域,共设三间卧室和一间书房,书房设在二层,可确保读书、办公时不被打扰。楼梯旁边的卫生间,方便居住者使用。

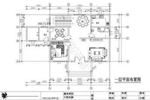
第三款:普通农村自建房设计图
预估造价:25万
建筑占地:10.9m×9.1m
建筑面积:160㎡
图片描述:这款房屋采用了现代的设计风格,一层立面以深色为主,再配上二楼白色的墙砖,红色的琉璃瓦,则可以让建筑更加和谐统一。坡屋顶的设计让排水更加的顺畅。大开窗设计可提高室内采光和通风效果。

功能分布:
入户门居中设计,将空间更好的进行了划分,此外一侧还设有客厅,一间卧室,可做老人卧使用。
二层为居住区域,设有两间卧室和一间书房,南侧还有一个宽敞的露台,方便居住者观景和晾晒衣物。
文章总结:好了,关于普通农村自建房设计图以及农村砖混二层自建房怎么设计的相关知识就介绍到这里了,有需要了解更多资讯的朋友,请继续关注齐家网,后续我们将有更好、更精彩的内容为您奉上。
什么,装修还用自己的钱?!齐家装修分期,超低年利率3.55%起,最高可贷100万。立即申请享受优惠
网址:普通农村自建房设计图 农村砖混二层自建房怎么设计 https://www.jiaju82.com/news-view-id-780516.html

