中国设计新青年优秀作品巡展|杨学成: 简于自然,奢于生活
青年设计师代表杨学成,毕业于大连海事大学,现任唐山喜洋洋装饰设计公司设计总监,今年是他从事设计行业的第28个年头,极致的简单而又不失自然之美,让人由内而外的发出赞许之音,让生活回归自然,让幸福常驻您家,是他的设计感悟。
杨学成
作品名称:《简》
项目地址:河北省唐山市-国贸府
总面积:240 m²
设计风格:极简自然风格
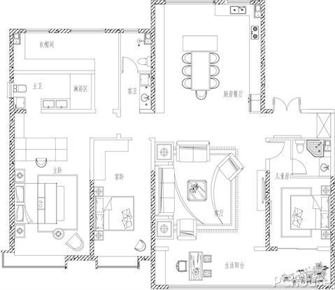
平面布置图
△客厅
客厅沙发背景,采用高级灰色硬包,营造现代简约的空间基调,线条的设计拉高了整体视觉效果。
△厨房
餐厅与厨房的相互融合,光线充足,并打造浪漫的就餐氛围,餐桌造型独特,大落地窗营造用餐时的愉悦氛围。
△卧室
主卧宽敞有度,吊顶无主灯悬浮设计+石膏板背景割槽修饰,突出极简特点,营造出温馨宁静,为用户提供一个舒适的环境。
次卫生间地砖选用与厨房同样的花色瓷砖,保持视觉一致,浴室柜外移,起到干湿分离的效果,实用又方便。
我们生活在一个高度共鸣的时代,设计师创意设计的一切都会与人们产生共鸣,设计可以通过好的作品去传递自身的态度与理念,同时也会从外界获取更多的灵感与感受。家便是这样,装饰简单,色彩简单,说不出哪里突出,却处处充盈着平淡幸福温馨的气息。
以上作品的主导设计师杨字成也是今年中国设计新青年(2021)年度评选TOP100设计师之一。
向美而生,逐美而行。目前,中国设计新青年评选活动已成功举办三届, 是一个优秀设计师交流成长的平台。中国设计新青年(2021)评选由广州设计周携手国际室内建筑师设计师团体联盟(IFI)、网易新闻、欧神诺瓷砖联合主办发起。《室内设计与装修 ID+C》杂志、太平洋家居、腾讯优居全程媒体支持。在这个为青年设计师定制的展示舞台上,优秀的作品将会大放异彩。
网址:中国设计新青年优秀作品巡展|杨学成: 简于自然,奢于生活 https://www.jiaju82.com/news-view-id-785835.html

