自建房一层楼设计图 农村自建房一层20万够吗
在建房时除了要注意色彩搭配和布局之外,还要做好预算,这样才不会花冤枉钱。那么自建房一层楼怎么设计呢?下面我们就为大家介绍一下:自建房一层楼设计图及农村自建房一层20万够吗?希望可以给大家一些帮助和启示。

第一款:自建房一层楼设计图
图片描述:这款蓝色的房顶,素色的外墙,看起来更加的美丽和时尚。多窗设计+大门,可以增加室内的采光和通风,让业主居住起来更加舒适。而门口的走廊,可以供老人和宝宝玩耍、观景。
占地面积:16m*11m,180平方米左右。
房屋层高:一层。
房屋高度:5.7米(含屋顶)。
工程预算:22万左右。
设计功能:客厅、吃饭厅、厨房、卧室(附厕所)、卧室×2、书房、厕所。

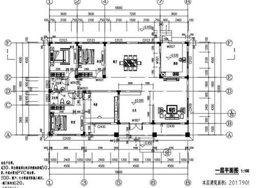
第二款:自建房一层楼设计图
图片描述:这是一款3室2厅的房屋,外墙白色墙砖+红色的屋顶+红色的大门,既时尚好看,又别有一番风味,丝毫不比别墅差。而多窗设计,则可以增加室内的采光和通风,可以让业主居住起来更加舒服。

占地面积:18m*13m,180平方米左右。
房屋层高:一层。
房屋高度:6.2米(含屋顶)。
工程预算:20万左右。
设计功能:
一层户型:玄关、客厅、吃饭厅、厨房、主卧(附厕所,小书房)、卧室×2、厕所。

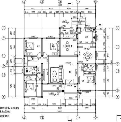
第三款:自建房一层楼设计图
图片描述:这款房屋非常适合老人养老,外墙采用深色的文化砖进行点缀,再配上红色的屋顶、白色的走廊和窗框,则可以让色彩更加的丰富,不会过于的单调。而四周的玻璃窗,可以增加室内的采光和通风,让室内更加明亮和舒适。带花园设计,可以让业主种种花草,或打打牌、泡泡茶,让业主的身心得到放松。

占地总面积:16.0m*16m,200平方米左右。
房屋层高:一层。
房屋高度:6.5米(含屋顶)。
工程预算:20万左右。
设计功能:客厅、吃饭厅、厨房、活动室、主卧(厕所)、卧室×3、厕所、洗衣间、杂物间。

农村自建房一层20万够吗:
从以上几张效果图中可以看出,20万建一层楼还是足够的,但是在建房时一定要注意空间布局和色彩搭配,这样才能打造出舒适、温馨的房屋。

文章总结:好了,关于自建房一层楼设计图以及农村自建房一层20万够吗的相关知识就介绍到这里了,有需要了解更多资讯的朋友,请继续关注齐家网,后续我们将有更好、更精彩的内容为您奉上。
什么,装修还用自己的钱?!齐家装修分期,超低年利率3.55%起,最高可贷100万。立即申请享受优惠
网址:自建房一层楼设计图 农村自建房一层20万够吗 https://www.jiaju82.com/news-view-id-786333.html

