曙光花园 现代简约
发布时间:2022-03-01 12:00
案例详情 业主是中年夫妇,从现代风格出发,设计整体性去规划空间,繁华之外,幸存一份对空间的享有,营造诗意生活,整个居室自然流动,如诗如画,是此案例的初衷。

客厅的设计给人柔和优雅的气质。进门处是中空的玄关柜,沙发背景墙采用简洁的石膏线条与墙板结合,整体效果简洁明快。

儿童房多了一丝浪漫,整体色调干净,在私密舒适的同时,拥有了更多的情感体验。

餐厅作为家庭情感交流的重要场地,减去了繁复的装饰,现代吊灯营造出融洽舒适的生活意向。在就餐的同时也构建起了人们的各种想象,提升了生活情调。

主卧的配色比较简单,整面的床头背景墙,床对面是通顶的衣柜,整体感比较好,非常舒适。

电视背景墙采用整体的设计理念,电视整个嵌入到柜子里,背景墙下部留有灯带,增加美观性。

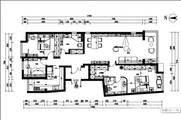
原始户型比较通透,每个休息的房间都有独立的阳台和窗户,采光还是不错,户型没有经过太大的改的,重新合理的安排了布局
网址:曙光花园 现代简约 https://www.jiaju82.com/news-view-id-797098.html