上京新航线 现代简约
发布时间:2022-03-01 16:02
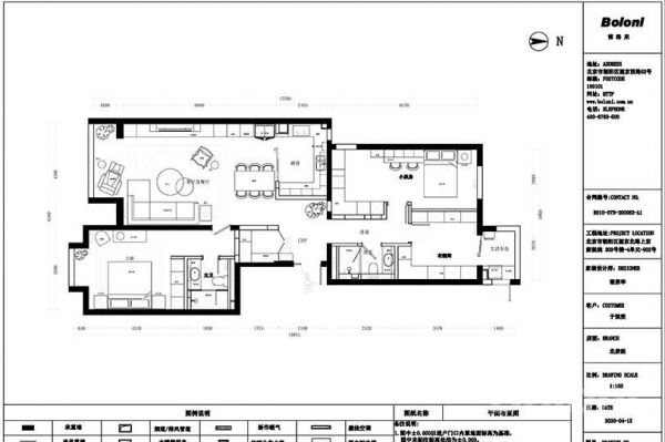
案例详情 原本3居的空间改变为2居,给增加了小孩房增加了更大空间,整体空间基调中性而时尚,主要设计走实用路线,具有超强的收纳储藏功能。

内饰选用天然的材料,质感和色泽大多来源于自然的馈赠,搭配起来和谐舒适,也自带一种沉静温暖,安定人心的气质。

开放式设计加强了客厅,餐厅和厨房的互动性,将有限空间内的空间功能化。餐桌上方的吊灯为用餐带来了仪式感。

卧室于浴室以隔断分开,灯带的应用无处不在,散发出柔和静谧的光。嵌入式灯带设计将木制的家渲染的温暖又有气质。

餐厨区采用开放式设计,整体布局开放大气,整体收纳也是设计的亮点之一,灯光气氛烘托完美舒适。

卫生间和卧室仍然延续灯带设计的手法,简单的设计与搭配就能衬托出空间的气氛,低调温暖而自然。

设计师利用大理石,黑钢材和玻璃等材料不同质感的碰撞,将小空间蜕变成为优雅现代,大气奢华的“小豪宅”。
网址:上京新航线 现代简约 https://www.jiaju82.com/news-view-id-797195.html