乐成公馆 现代简约
发布时间:2022-03-01 17:00
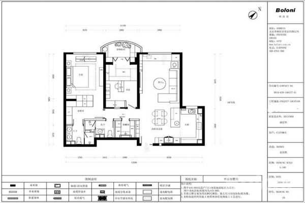
案例详情 简约的设计风格除了给人简洁舒适的感受外,同时也演绎着另外一种的低调奢华。面对快节奏的生活,越简单的室内空间对于人们来讲是奢侈。

客厅于餐厨区采用全开放式的空间布局,温暖的室内陈设于简约到极致的设计风格搭配的恰到好处。

卧室与浴室之间设置隔断,只分割功能不分割空间,创造出视觉上的连接感。洁白的空间整体表现出一种平静的感觉。

这个开放式空间的厨房并不完全开放,玻璃移门的设计,又让厨房变得很有存在感,使得每个空间都有很清晰的界限感。

开放式的客厅采用咖色,灰色和白色搭配的释厄内色调和谐统一,吊顶的射灯和灯带营造空间氛围。

卧室的吊顶采用时下最流行的无主灯照明凸显氛围,从卧室库进入将空间利用到极致的更衣室,完美与设计贴合

现代空间的标配开放式布局,加上合理分配的橱柜,客厅飘窗的设计让室内更加美观大方。使得整个空间更有高级感。
网址:乐成公馆 现代简约 https://www.jiaju82.com/news-view-id-797209.html