天鹅湾 现代简约
发布时间:2022-03-01 22:00
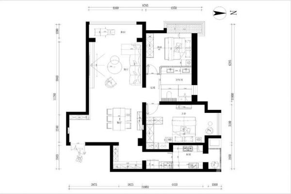
案例详情 此客户是一个年轻的90后,根据客户的需求最终定义现代风格,年轻人都喜欢简单,原本的两室两卫改成了两室一卫,加出来衣帽间,整体设计合理

客厅的设计给人柔和优雅的气质,沙发背景墙以墙板作为背景大理石为分割线,沙发背景墙整体效果果稳重大气。

卧室便是温和舒适的,这种空间氛围的对比方式,更加沉淀了卧室的沉静。无论是晨光洒入的时刻,还是夜晚降临时,无不酝酿着光阴的静谧。

客厅没有过多的硬装造型,通过线条的勾勒,质感软装的铺陈,现代的气息充盈着空间的每一个角落。明艳色彩的点缀,幻化沉闷感,家的亲近氛围娓娓道来。

餐厅作为家庭情感交流的重要场地,减去了繁复的装饰,没有采用繁重的主灯,磁吸灯加上轻巧的悬垂灯营造出融洽舒适的生活意向。在就餐的同时也构建起了人们的各种想象,提升了生活情调。

原始户型比较通透,每个休息的房间都有独立的阳台和窗户,采光还是不错,在原有的基础上主卧分出衣帽间,限度的增加了主卧的使用功能。
网址:天鹅湾 现代简约 https://www.jiaju82.com/news-view-id-797286.html