美家打造|看全友设计师如何玩转小户型北欧风
北欧风本就自带简约感,简洁明快的色彩可以让人感受到家的温馨与自然,小户型北欧风该如何设计呢?不妨参考一下这个案例。
盛女士打拼多年,终于拥有了一套属于自己的两室两厅的房子,也终于获得了在这个城市的归属感。对于家,她希望是她温暖的“栖息地”,在这里,可以不管外界的繁华与忙碌,感受到最本真的美好。全友设计师了解到盛女士的需求,经讨论后确立全屋风格为温暖北欧风。通过柔和奶油白与温暖土耳其褐木的搭配,为她打造出一个自然与简雅共存的温馨小家。

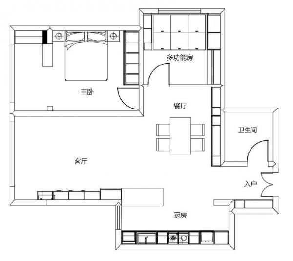
(▲平面设计图)

(▲鸟瞰设计图)

进门处定制玄关柜,不占空间,简约大方。中部留出置物格,可挂、放出入常用物件,底部留空可以放置穿着频繁的鞋子,也更方便清理打扫;闭合柜门无把手,干练大气;两个镂空部分均安装了内置灯带,方便物品拿取的同时,用灯光营造出温馨氛围,让人一进门就感受到温暖。

客厅以奶油白+土耳其褐木作为主色调,配以灰蓝色小沙发作为点缀,整体清新自然,客厅空间虽然不大,但温馨简约。为了保证客厅的通透感,设计师没有像其它大户型家庭定制整墙电视柜,只用了一个悬空式电视柜和小矮柜承担储物功能,再增加两块墙面隔板作为展示区,减轻了拥挤感,带来轻巧灵动的视觉观感。

餐厅靠墙定制顶天立地式餐边柜,半开放式设计,展示与收纳兼备,丰富储物量承担了客厅、餐厅、厨房的大部分收纳需求;部分透明柜门设计,使整墙柜体更通透自然。餐桌椅以栗木+深绿色搭配,恰到好处地展现出自然的北欧风情。

盛女士平时一人独居,但偶尔也有朋友前来聚餐,相较于封闭厨房,盛女士更喜欢开放厨房的自由交流感,所以在这里打掉了厨房与客厅间原本的隔断墙(非承重墙),变封闭厨房为开放厨房,内嵌式家电节约空间,改造门洞变为圆弧形,圆润流畅,更显温柔。同时为了让空间保持连贯的视觉呈现,设计师将客厅的储物柜台面延展到了厨房并与墙体连为一体,作为厨房的补充台面,可当备餐、出餐台使用,让烹饪、用餐都更方便。

主卧以整墙闭合式衣柜,轻松收纳盛女士四季的衣物,自然的木纹肌理与奶油白搭配,营造温暖舒适的入眠氛围。原本主卧中有一根非常明显的承重柱,设计师通过在承重柱旁的主卧阳台定制悬空式梳妆台,巧妙地将承重柱进行了包裹,化解柱体在整个空间中的突兀感,也满足了盛女士日常梳妆需求。

多功能房空间较小,设计师在这里利用定制榻榻米、定制衣柜、一体式书柜+书桌,打造出集书房、次卧为一体的空间,满足睡眠、收纳、工作、娱乐多重需求。延续全屋的奶油+原木色搭配,营造出舒适轻松的工作、睡眠氛围,温暖惬意。
最后,总结一下北欧风设计的要点:
1.色彩明亮简约:北欧设计大部分都是由白色为主基调的,因为北欧纬度高,冬季比较漫长,所以当地人很在意内部空间的明亮。
2.线条简洁流畅:北欧风自带简洁感,不会有轻奢的精致,也不会有中式的庄严,用流畅的线条来勾勒整家,会带来自然且大气的视觉感受。
3.原木元素较多:无论是地板、柜体、家具还是其它软装,到处都可以见到木质元素,而且大部分都是浅色系原木色。
北欧风能够给人带来温馨自然的感受,设计简单又清爽大气,是很多人都钟情的装修风格,如果你还想了解更多与北欧风格有关的设计,欢迎前往全友全屋定制线下实体店进行了解哦~
网址:美家打造|看全友设计师如何玩转小户型北欧风 https://www.jiaju82.com/news-view-id-805332.html

