三叶公园
发布时间:2022-05-02 16:00
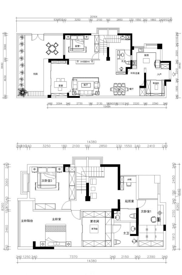
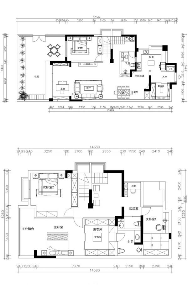
案例详情 原三房两厅两阳台格局; 优点:1、室内空间通透明亮,采光与采阳均非常充分;2、房子承重墙体占比少便于满足不同的需求补充;3、室内新建墙体墙体少,房间格局发挥空间大。 缺点:1、室内格局不适宜做生活阳台。2、较大的阳台在作为生活阳台使用时都会个相连空间造成影响;设计考虑:1、增添独立的生活间,靠东南面采阳充分;2、主卧功能划分由整到一的分隔,提供较大的舒适及便利。

墨绿色的餐椅点缀了整个空间,格栅设计背景墙显得更有质感

整体风格设计以白色简约为主,扑面而来的干净清爽气息!

充分利用入户空间做了一个开放式厨房,吧台也可做餐桌使用。整个空间看起来更通透

109平米 复式现代简约风格

109平米
网址:三叶公园 https://www.jiaju82.com/news-view-id-808068.html