世茂轩景颂之改头换面
发布时间:2022-05-03 01:00
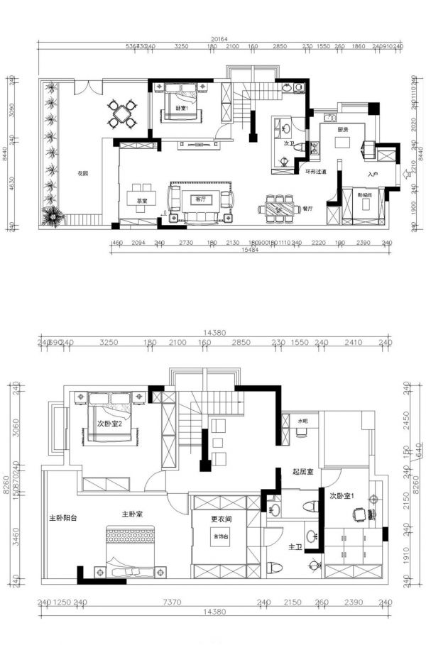
案例详情 原五房两厅四阳台格局;优点:1、客厅面积大,卧室很方正;2、花园和客厅连接的很好;缺点:1、厨房采光不好;2、楼梯位置不理想;设计考虑:1、改动楼梯的位置,增加客厅的空间;2、利用赠送面积改卧室面积;3、主卧增加衣帽间,增大需求量

黑色和橙色的皮质沙发组合,为空间增添了精致感

整体色调以白+咖为主,简约有质感。整个空间搭配一简一繁,一轻一奢。

皮质双人床和床头柜搭配使整个主卧更显利落精致感

动线合理,空间宽敞通透;灵活实用的厨房空间是快乐家居生活!

五居两厅两卫 220平米
网址:世茂轩景颂之改头换面 https://www.jiaju82.com/news-view-id-808072.html