路劲御合院现代风
发布时间:2022-06-08 12:04
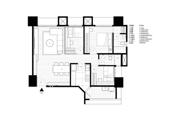
案例详情 业主是一对刚结婚不久的年轻小夫妻,他们对北欧风情有独钟通过沟通设计师对房屋格局做了简单的调整。经过一些细微的调整后更贴合他们的日常生活。

客厅顶面不做吊顶,很符合北欧的简约风格。绿植的加入,营造出清新、自然的感觉。

采用白色的百叶窗,让光线充足进入到客厅。简单的白色沙发构成L形,整体通透大气。

主卧大面积的木色与白色搭配,简约自然。半侧的床头木板,造型新颖,简约时尚。

原木餐桌,细看别致的桌腿,干净利落的线条,形成一种别样的美感。

三室两厅两卫
网址:路劲御合院现代风 https://www.jiaju82.com/news-view-id-812996.html