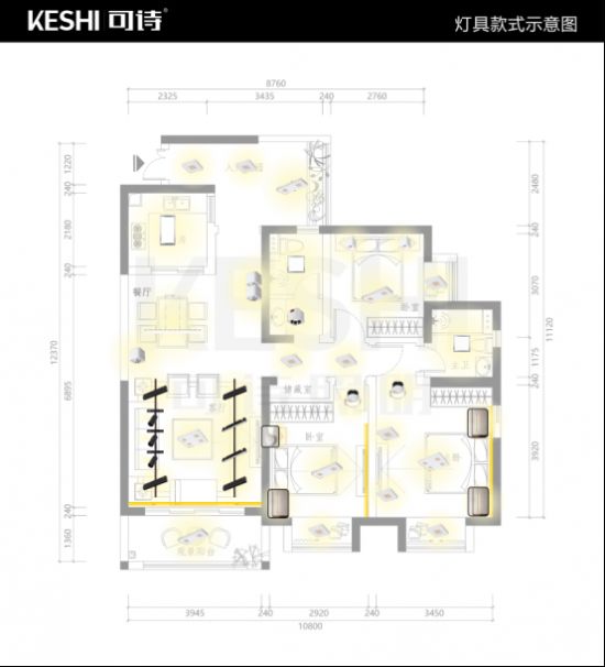
KESHI可诗照明:120.14m²不吊顶全屋灯光设计分享
一、项目基础信息
户型:三房两厅
户型面积:120.14㎡
空间照明:无主灯
照明设计:KESHI可诗照明


二、区域无主灯设计
▼玄关照明设计
穿过繁闹的城市,从拥挤的人潮中走来,回归到安静的家中。
玄关处的双头明装射灯点亮,仿佛在欢迎着家庭成员的回归。放下雨伞、背包,脱下大衣,更换上舒适的家居鞋,特意走到窗前,边看着城市的夜景边伸了个大大的懒腰,“又为梦想努力奋斗了一天啦”!

▼厨房照明设计
用食物凝聚家庭,用美食慰藉家人,看似简约的厨房中,却盛满了并不简单的心意。
夜幕降临,厨房灯亮,属于一家人的晚餐就在烧得火红的锅中诞生。虽然不是每位家庭成员都参与到料理中,但他们的心是凝聚的,是心系对方的。在橱柜底部安装橱柜灯,照亮背光区域,这便是其他家庭成员给足烹饪大厨的安全感。

▼餐厅照明设计
酸甜苦辣咸汇聚一起,便组成了生活。我们在食物中品味生活,也在生活中享受美味。
小型餐桌,虽容不下大众,但对于一家人而言,便已是极好的。一盏简约餐吊灯照亮餐桌,照出食物的本真诱人色彩,即便桌上是清淡的家常小菜,也让珍爱一日三餐的吃货们不禁垂涎欲滴。餐边柜上摆放了家中长辈专门淘回来的艺术画作,于是后辈们花心思地要用明装射灯照画,以重点突出画的存在。

▼客厅照明设计
客厅是一家人休闲娱乐之地,在灯光设计上又怎能马虎。
在无吊顶的天花上,平行布局的磁吸轨道灯相互呼应,中间还夹着超薄款四头明装射灯,各自承担着相应的照明责任。白色磁吸轨道灯为泛光条+格栅灯+万向射灯的组合,合理照亮整个客厅区域;超薄款四头明装射灯,则将光亮投向茶几,提供区域重点照明。
闲暇时光,一家人聚在一起,或看部喜剧,或战斗几轮象棋,或唠嗑几个来回,都有趣极了。

▼主卧照明设计
主卧的设计,不需豪华奢侈,但一定得美观大气。
木质家具,不管从色彩还是质地上,都给空间注入了清新之感。床头背板处,安装上常规明装铝槽线性灯,给卧室添上了几分灵动之感。两侧床头柜上方,各安装一盏简约吊灯,又巧妙为空间增加了设计感。而床尾处的四头明装射灯,则是让卧室大气明亮的保证。

▼次卧照明设计
次卧的床尾都安装了方形双头超薄明装射灯,主要为空间提供基础照明。而不同的房间,又因不同的主人而在灯光设计上稍显不同。长辈房的背景墙,以白色单头明装射灯投射而出的漂亮“小山丘”点缀;而后辈房则应用上了设计感十足的吊灯,颇合年轻人的审美诉求。


在120.14㎡的三房两厅里,听着长辈的唠叨,吃着父母的私房菜,追逐着自己的梦想,满满的都是生活的幸福感。
家,不必豪华,明亮温暖就好!家,也不必太大,容得下一家人就好!
——“您的专属灯光设计师”KESHI可诗照明
网址:KESHI可诗照明:120.14m²不吊顶全屋灯光设计分享 https://www.jiaju82.com/news-view-id-822845.html

