清新自然,精致简约
发布时间:2022-11-15 17:00
案例详情 本方案的设计理念,是让居家空间充满惬意轻松的感觉,以原木质感为元素,卧室墙板为绿,置身其中你会感受到满满的简洁与自然气息。布置上简约舒适的家具、精致的软装细节,营造出一种自然大方的空间氛围

玄关

厨房

餐厅

客厅

卧室

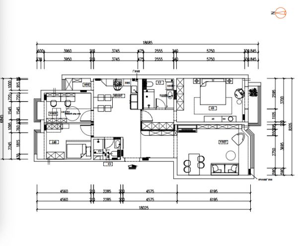
户型图
网址:清新自然,精致简约 https://www.jiaju82.com/news-view-id-830012.html