紫金长安老房翻新现代简约风
发布时间:2023-05-26 20:00
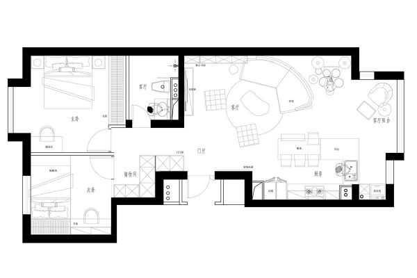
案例详情 三口之家,都市中找寻质朴与宁静的氛围,风格现代典雅,人文音乐世家,追求自我个性,生活调型的设计理念。

客厅空间设计更加灵动,摒弃了传统的大沙发靠墙的形式,采用异形沙发来做设计,全屋浅色地板通铺,柜体做一些深色来做跳色,同时壁挂的方式来减轻视觉重量,达到空间视觉深浅平衡的效果。

把沙发居中的形式来软性分割两个空间,把阳台和部分客厅空间统一设计,做了休闲区的空间规划,把架子鼓和休闲小沙发设计到了这个空间,满足娱乐的同时达到身心放松。

主卧室空间整体色调以素色形式设计,通过一些暗藏式灯带来达到空间氛围的效果,地面采用和客厅通铺的地板,柜体通顶,暗藏式中央空调。

原本封闭式的厨房,让整个客厅空间视距很短,后打通阳台,把阳台纳入整个厨房空间来做设计,大的中岛台加餐桌的形式设计,让整个厨房空间更加大气,且动线合理。

次卧室空间主要是孩子的独立空间,满足孩子居住的同时还得保证孩子学习的空间,大的衣物储物和书桌书柜的空间设计。

客户家是一个两居,进门右手边是厨房,餐厅,客厅,休闲阳台空间,左手边是主卧和次卧加一个卫生间,把次卧空间设计方正后,设计出了一个衣帽间。
网址:紫金长安老房翻新现代简约风 https://www.jiaju82.com/news-view-id-845182.html