土儿胡同现代简约北京装修
发布时间:2023-06-02 20:00
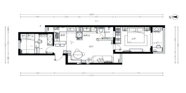
案例详情 以简洁明快的设计风格为主谓的设计,营造的是简单大气的氛围,其最突出强调的是设计的功能性和实用性,总体布局方面全面考虑业主生活上的需求。

客餐厅此空间的特点就是开放式厨房,将使用美丽的餐桌与厨房紧密相连,形成一个开放式的烹饪就餐空间。

客厅采用了无主灯式吊顶设计,沙发侧面对着窗户采光也是非常好,L形高柜下方做一组卡座在存储的同时还可以搭配桌子形成一个简易的餐桌。

卧室整个房间的储物空间非常充足将原本的房间阳台打通,让房间看起来非常的宽敞明亮。无主灯的吊顶设计非常的具有观赏,床头柜链接衣柜既能放置物品又美观。

女儿房整体设计非常可爱每个拥有充足的储物空间,学习娱乐空间。开放式墙柜不但能展示自己的装饰品,可以便利拿自己需要的物品。

此户型客户要求一个儿童房。开放式的厨房紧贴餐桌将原本拥挤的空间看上去更加宽敞,儿童房跟大人房分开拥有各自的隐私空间。
网址:土儿胡同现代简约北京装修 https://www.jiaju82.com/news-view-id-845864.html