京澜誉府北京装修老房翻新
发布时间:2023-06-26 11:00
案例详情 简约并不是缺乏设计要素,而是让所有的细节方面看上去都是非常简洁的。现代风格也是更加注重实用性以及功能性,同时还要更加的精致,体现一种精致的生活态度。

通过灯光的修饰使空间简约时尚又充满氛围感,电视背景墙利用白色系材质与原木色堆叠出来的层次感,让空间简约又不显单调电视背景墙做内嵌式处理,整体感觉温暖大气。

客厅极简柔软方块沙发,搭配高低错落的茶几,线形灯设计,点缀绿植烂,宁静温柔有质感的空间,整体感觉温暖,大气。

餐厅空间延续了简约风格,白色大理石台面,配上木质桌椅,在搭上一些配饰点缀,根据色彩与材料质感之间的相互碰撞,显得整体富有层次与高级感。

卧室以暖色调统一,无主灯设计,温馨的光线氛围,无过多的装饰设计,简单的线条搭配几何造型,勾勒出清爽,简约舒适的空间。

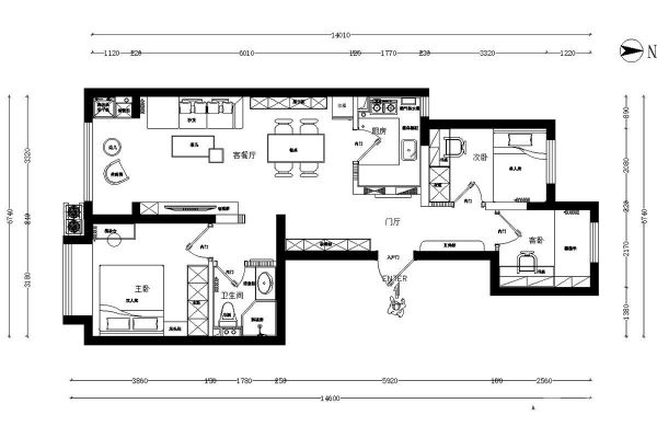
该户型为三室两厅一厨一卫,根据业主实际需求进行设计,设计了鞋柜,进门后换鞋方便,同时设计了门厅区,进门也是一道景,厨房设计了 U 型橱柜,使用方便,卫生间都做了干湿分离,客餐厅看起来宽敞明亮,功能分区明显。
网址:京澜誉府北京装修老房翻新 https://www.jiaju82.com/news-view-id-847601.html