北京和泰园老房翻新设计
发布时间:2023-07-21 11:00
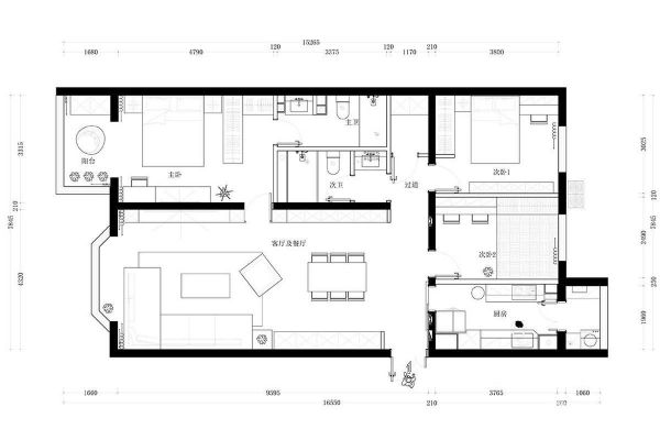
案例详情 现代简约风格,主要设计理念是简洁,舒适,没有多余的装饰,线条简单,室内空间大方。在设计过程中,还注重实用性,合理利用空间,充分考虑业主的生活需求

电视墙做了整面柜体,和主卧隐形门完美的融合在一起,提高了收纳空间,也使整面墙更美观。

顶面采用局部吊顶的设计,使空间有层次感。搭配氛围灯的设计,营造舒适的空间

餐厅与客厅衔接开放,取消传统的隔断设计,极大增强空间的趣味互动。

以柜为墙围合出的开放式衣帽间,增加卧室收纳功能,优化生活方式。温和的灯光带来了静谧中的温馨感,渲染出舒适的休憩空间。

做了整体的电视背景墙,用衣柜分割开主卫和主卧,增加储物空间。次卫做干湿分离。
网址:北京和泰园老房翻新设计 https://www.jiaju82.com/news-view-id-849813.html