上新了!这些新房7月即将开盘 看看有没有你的“菜”?
时间即将进入7月,2024年转眼过完一半了。上半年的京楼市场,可以用“跌宕起伏”来形容,迎来一些政策的调整,购房者的心态也有所变化。各家房企从价格、产品等多方面来积极应对各种变化。但从产品来看,新房的户型在今年有了一个新的升级,得房率普遍提高,户型设计更加贴合居住需求。那么,即将到来的7月份,都有哪些新房即将入市呢?今天就给大家盘点一下,有置业需求的朋友可以关注一下。
大兴:西红门板块热盘受关注
随着19号线、皇城根小学大兴分校、北京四中大兴分校等逐步落位,再加上板块内现有的荟聚、宜家、山姆等成熟的商业配套,大兴西红门已成为近年来南城的热门置业板块。目前板块内已有多家名企开发商进驻,待售新房有壹品兴创·御璟星城·元启,预计7月将入市。

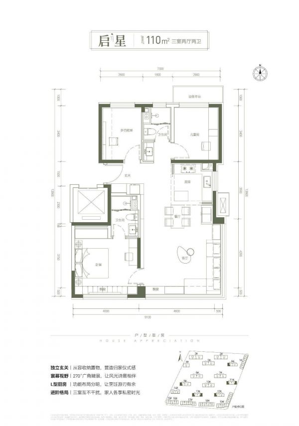
御璟星城元启位于京开高速和南五环交叉口东北方向,小区规划20栋楼,4-15层,指导价为6.6万/m²,户型为80-88-99-102-110-111-112-127-142-168平三居四居,,一共12个户型,从刚需到改善全覆盖,选择非常多。以110平三居为例,来解析一下:

解析:110平宽敞三居,这户型亮点在客厅,设计成270度转角客厅,客厅面宽达4.6米,在这个面积段来说这个面宽很优秀了,再加上转角设计,可以想象到室内采光该有多好。主卧套房设计,南向面宽4米,十分宽敞,住着很舒服。整体户型比较方正,设计合理,适合刚改家庭。
想了解更多详情的朋友可以致电售楼处详询4001560036 转 450626。
丰台:大瓦窑板块临铁改善盘即将入市
大瓦窑也算是一个新房扎堆的板块,前两年入市的国誉万和城、首创天阅山河,基本上卖的差不多了;中建·和颂九里先一步入市,目前已经顺销。京能·西贤府在上周末开了售楼处和样板间,预计7月入市。

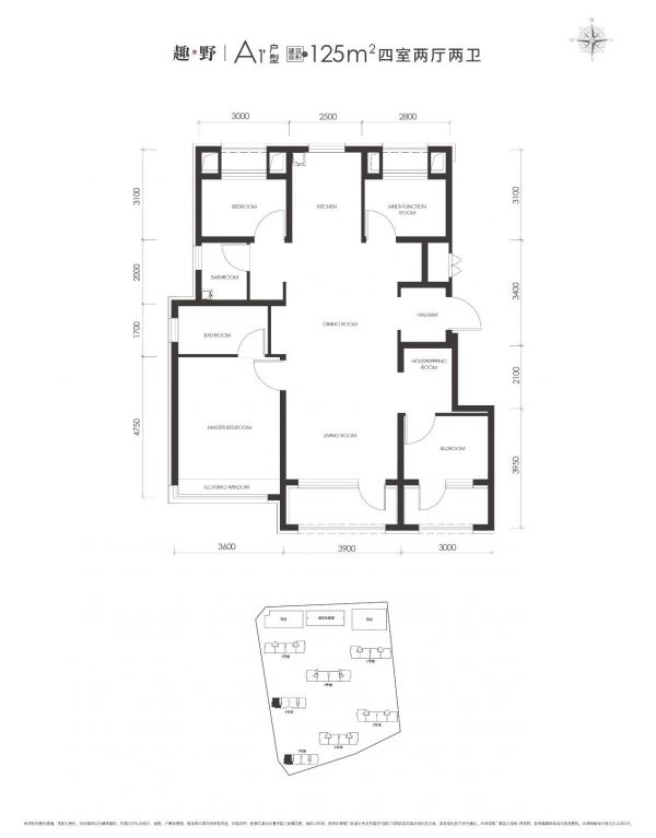
从位置上看,京能·西贤府紧邻地铁14号线大瓦窑站,乘坐地铁可以直达丽泽金融商务区。自驾可以走京港澳高速,出行十分便利。项目一共7栋住宅楼,设计为11-18层的洋房和小高层,428套房源,体量适中。产品方面,为建面约125-173㎡四居,指导价8.3万/平,适合改善人群在此置业。

解析:125平四居,南北通透方正四居,客厅和南向次卧带阳台,南向整体面宽达10.5米,保证室内良好采光。主卧套房设计,私密性更好。厨房、餐厅、客厅一体化,动线合理,且通透性也更好。
了解更多详情可致电售楼处详询4001560036 转 450583。
顺义:后沙峪硬核新房产品很“抗打”
顺义楼市的“卷”,是有目共睹的,户型做的是真的很棒,各种黑科技可真不少,得房率超高,一个比一个卷。
今天要介绍的是星宸和煦,位于安宁大街与裕安路交叉口西北120米,属于后沙峪板块,东侧约1.2公里左右,是地铁15号线花梨坎站,北侧约800米左右即是祥云小镇,生活配套很成熟。

小区共规划9栋住宅楼,层高9-11层,共计约270套房源,地块很纯粹,没有配建,可以说是小而美的社区。产品方面,有110-143平米三至四居,指导价6万/㎡,预计开盘会有优惠。
至于产品,咱们看下143平户型设计:

建面约143平米四居三卫,南向四面宽格局,三卧朝南、双套房,主卧卫生间是双台盆设计,且卫生间是明卫,使用起来更为方便。等宽LDK区域,更加通透明亮。重点看下南向防火挑檐设计,懂得都懂。
了解更多详情可致电售楼处4001560036 转 450537
总结
今天给大家汇总了7月即将入市的新房,包含大兴、丰台、顺义等区域,产品主要以刚改、改善为主。现在不少新房在首期开盘的时候都会有不同程度的优惠,有置业需求的朋友建议在首期开盘的时候入手是比较合适的。返回搜狐焦点首页,查看更多
网址:上新了!这些新房7月即将开盘 看看有没有你的“菜”? https://www.jiaju82.com/news-view-id-869860.html

