地铁旁+洋房社区+丰富配套!五环这处新房户型曝光!92-144平3-4居
最近,房山两个项目有新进展,北京城建和知筑、北京城建颐知筑售楼处对外开放了,而且北京城建和知筑的户型产品也对外曝光。区别于同区域的新房产品,没有做小户型,主要面向刚改和改善客群。
说项目之前,先来简单看下房山良乡板块的新房销售情况,京熙润府今年3月开盘,截止8月21日,网签218套,成交均价36638元/平。

中建房山·国贤府去年6月开盘,入市较早,截止8月21日,累计网签450套,成交均价4.3万/平。


这两个项目均在地铁沿线,且品质、产品都很在线,是目前房山新房市场卖的比较好的两个项目。
接下来说说北京城建和知筑,项目位于房山线广阳城地铁站西侧约300米,是妥妥的临铁盘。周边大型商业丰富,像熙悦天街、首创奥莱等,满足日常生活需求。感兴趣的朋友拨打电话咨询4001560036 转 450665

该项目包含两个住宅地块,其中0011地块位于房山线广阳城站西侧,0023地块位于该站西南侧,共规划了15栋住宅楼,规划5至8层、9至11层的洋房和小高层,销售指导价为4.5万/平米。

产品方面,有92平三居、109平三居、112平三居、125平四居、144平改善四居。

解析:92平南北通透三居,是项目中的小户型产品。亮点:
1、 客厅和主卧朝南,主卧套房设计,形成一个独立的空间,私密性很好
2、 270°转角客厅设计,且餐厅旁边也有窗户,观景效果和采光都很好
3、 厨房为U型设计,相比L型操作台面更大,收纳东西更多

解析:112平功能四居设计,亮点:
1、 南北通透,格局方正,全明格局
2、 两个卧室和客厅均朝南,南向整体面宽10.2米,带家政间
3、 纵向来看,北向多功能室、餐厅、客厅一体化设计,通透性更好

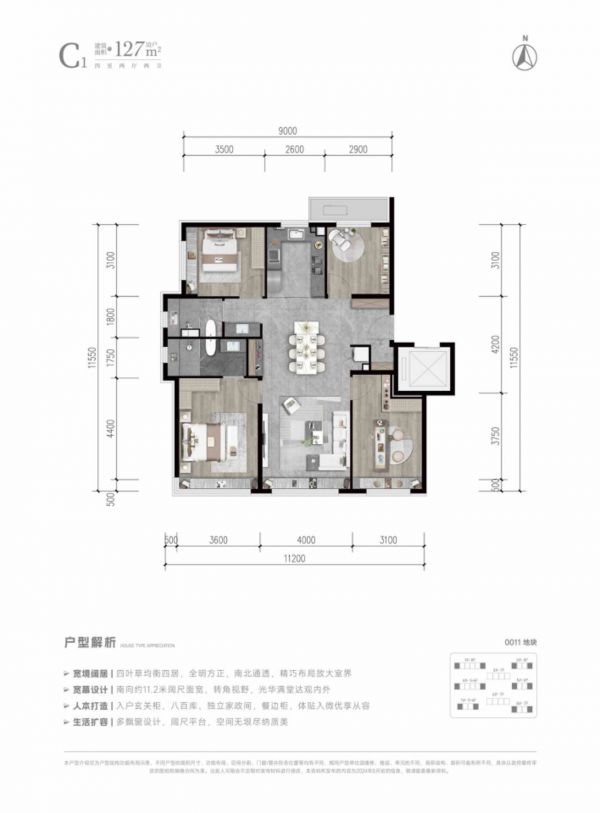
解析:127平舒适四居设计,亮点
1、 经典的“四叶草”格局,南向整体面宽达到11.2米,更为宽敞,采光面更大
2、 同样是南北通透,全明格局
3、 厨房、餐厅、客厅一体化,餐厅旁边有餐边柜设计,可以更好的收纳日用品
北京城建和知筑紧邻广阳城地铁站,出行便利,产品以刚改、改善产品为主,销售指导价为4.5万/平,未来入市的价格还未知。比较适合在丰台科技园、9号线沿线、甚至丽泽商务区工作的人群选择。目前项目售楼处已经对外开放,感兴趣的朋友可以实地去看看。返回搜狐焦点首页,查看更多
网址:地铁旁+洋房社区+丰富配套!五环这处新房户型曝光!92-144平3-4居 https://www.jiaju82.com/news-view-id-871872.html

