顺义新房“卷王”来了 77平做南北通透三居 使用率超高
发布时间:2024-10-24 15:31
最近,在购房群里,经常有朋友问,顺义的星悦时光怎么样?值得不值得购买?今天就跟大家聊聊这个楼盘。
星悦时光位于顺义仁和板块,地处朝阳北。项目由两个地块组成,7-11层洋房,容积率仅有为1.6,居住舒适度很高。北地块规划了11栋楼,南地块规划了12栋楼,小区体量适中。

产品方面,主力户型为建面约77、87、107平米的三居、四居,以中小户型为主,面向刚需刚改客群,指导价4.4w/平,目前还没开盘。

拨打售楼处官方电话4001560036 转 451546 进行详细咨询
接下来重点说下产品,都知道顺义新房特别卷产品,那来看看星悦时光的户型都有哪些亮点。

77平三居A户型:
1、即使是小户型,也做到南北通透,整体的格局比较方正
2、灰色部分是黑科技,使用率大大提升
3、270度全景阳光房,且客厅面宽达4米
4、明厨明卫

87平三居B1户型
1、三面宽朝南,南向整体面宽约10米,保证室内良好采光
2、主卧套房设计,且主卫为明卫
3、厨房、餐厅、客厅一体化设计,通透性更好

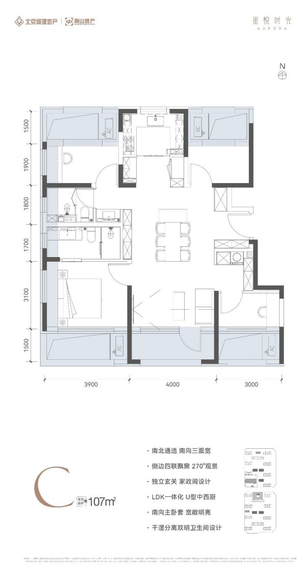
107平四居C户型
1、 南向以旧是三面宽,各个空间更大宽敞
2、 四个卧室分布在四个角,互不打扰
3、 干湿分离,双明卫设计
4、 U型厨房,且厨房、餐厅、客厅一体化
总结
星悦时光目前还没开盘,售楼处已经开放,产品做的确实不错,加上黑科技部分,使用率很高,整体的性价比还是挺高的,适合刚需族上车,感兴趣的朋友可以去售楼处看看。返回搜狐焦点首页,查看更多
网址:顺义新房“卷王”来了 77平做南北通透三居 使用率超高 https://www.jiaju82.com/news-view-id-873959.html

